Арт. 129069634
Вашему вниманию представляется дом под «ключ» в закрытом коттеджном поселке Пестово-на берегу Пестовского водохранилища расположенный в 22 км от МКАД по Дмитровскому шоссе.
Хотите сделать сказочную загородную жизнь своей реальностью? Приобретите роскошный загородный дом в коттеджном поселке Пестово и позвольте себе и своей семье насладиться истинным комфортом и удовольствием. Это уникальное предложение представляет дом площадью 530 кв.м на участке в 18 соток и предлагает Вам весь необходимый комфорт и функциональность, которую Вы только можете себе представить с первых дней проживания .
Внутри дома выполнена дорогостоящая отделка, установлена вся необходимая для жизни мебель и бытовая техника. Все инженерные работы выполнены исключительно из качественных материалов, установлена система кондиционирования Daikin. Вы будете наслаждаться комфортом и удобствами с первого дня своего проживания.
Дом утопает в зелени лесных крупномерных деревьев и редких декоративных кустарниках. Дом расположен в лучшей локации поселка, с центральным видом на искусственное озеро, с пляжем и игровой зоной для детей.
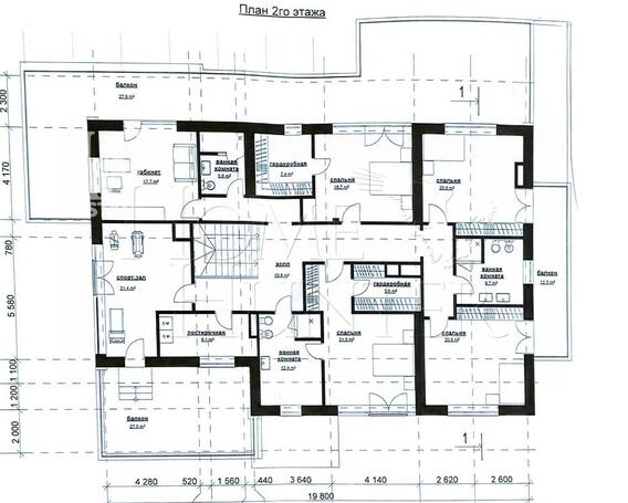
Планировка:
Первый этаж - прихожая, гардеробная, гостиная, библиотека с камином, кухня столовая с застекленной террасой и выходом на участок, кладовая, санузел, гараж на два м/м, котельная, чемоданная;
Второй этаж - спортзал, постирочная, мастер-спальня со своей ванной комнатой и гардеробной, гостевая спальня, санузел, три спальни, санузел, из каждой спальни предусмотрен выход на крытую террасу, которая располагается по периметру всего этажа.
Пестово – элитный коттеджный поселок, расположенный на берегу Пестовского водохранилища. От поселка до МКАД можно добраться всего за 20 минут, ведь он расположен в 22 км от столицы по Дмитровскому шоссе. Пестово отличается прекрасной экологией: с трех сторон он окружен лесом, а с четвертой находится красивейшая набережная, протяженностью 2,5 км. Собственный залив, яхт-клуб и возможность выхода в основные акватории Европы делают Пестово самым подходящим местом для любителей прогулок на яхте и водного спорта. При этом поселок Пестово абсолютно пригоден для постоянного, круглогодичного проживания. В поселке есть все центральные коммуникации, торговый комплекс, детский сад, начальная школа, детские и спортивные площадки. На набережной расположен прекрасный ресторан «Мелиора», с видом на Пестовское водохранилище. В поселке есть два открытых теннисных корта, волейбольные площадки, универсальная спортивная площадка для игры в футбол и баскетбол. Для любителей зимних видов спорта в поселке сделана хоккейная коробка с теплой раздевалкой. На территории поселка есть свой собственный парк с благоустроенными тропинками и четыре декоративных пруда с благоустроенными территориями отдыха. По близости расположен торгово-развлекательный комплекс Каштановая роща: супермаркет Азбука Вкуса, аптека, ресторан, салон красоты, магазин игрушек Киндервиль, детский спортивно-развлекательный клуб с батутным центром, зоомагазин и многое другое. В соседнем поселке Зеленый Мыс расположена одна из лучших школ Подмосковья – Ломоносовская школа. Также радом с поселком Пестово расположен Гольф и Яхт-клуб Пестово.




















































































