ID 585653
Продается дом 605 кв.м. под чистовую отделку на участке 24 сотки в КП Бузаево. 16 км. от МКАД по Рублево-Успенскому или Можайскому шоссе. Есть выезд на платную скоростную дорогу.
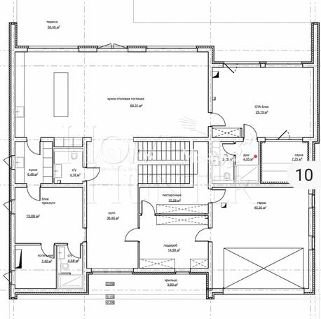
Планировка дома:
1 этаж: холл, гардеробная, кухня-столовая-гостиная с выходом на террасу, рабочая кухня, СПА-зона с сауной, душевой и санузлом. постирочная, кладовая, блок для персонала, гараж на 2 м/м;
2 этаж: холл, мастер-спальня с гардеробной, с/у и выходом на балкон, 2 спальни с гардеробными, с/у и выходом на балкон, спальня с гардеробной и с/у.
Коммуникации центральные.
Участок ровный, правильной формы, с ландшафтными работами: газон, дорожки, декоративные насаждения.
На данный момент все коммуникации разведены, инсталляции стоят, стяжки залиты, котельная собрана. Газ запущен, тепло есть. Дом зарегистрирован, адрес получен. Фасады готовы полностью
Посёлок «Бузаево» - престижная локация в одном из самых экологичных районов Подмосковья, всего 18 км по Рублёво-Успенскому шоссе.
Закрытая территория, спокойное окружение и удобный выезд на платную трассу - быстрый доступ в Москву в любое время.
Поблизости - супермаркеты, частные школы, фитнес-клубы, медицинские центры и рестораны. Локация идеально подходит для спокойной загородной жизни с городским комфортом.










