ID 586322
Продается великолепный дом площадью 470 м² (внутренняя площадь), 850 м² с террасами и эксплуатируемой кровлей, на участке 17 соток. Расположен в деревне Лызлово на Рублево-Успенском шоссе, с удобным выездом на платную дорогу.
Этот дом выполнен по технологии фахверк, стадия готовности White Box, отделка выполнена на высоком уровне. Построен с использованием исключительно качественных материалов и современных дизайнерских решений.
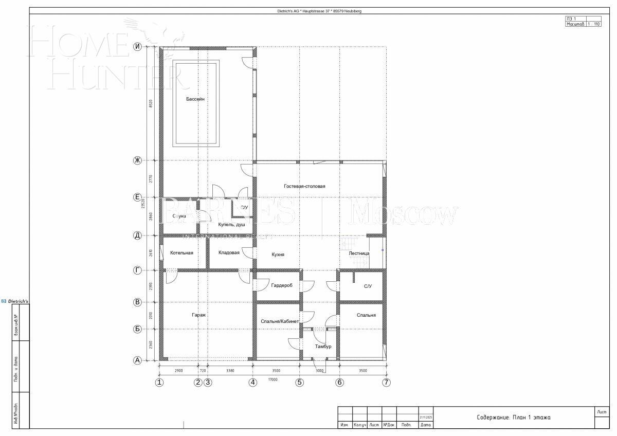
Планировка дома:
Первый этаж - гостевая спальня, кабинет , гардеробная , с/у, кухня, столовая зона,
котельная и постирочная, кладовая. СПА-зона - бассейн с противотоком, сауна , купель, душевая, су. Гараж на два машиноместа и навес на две машины.
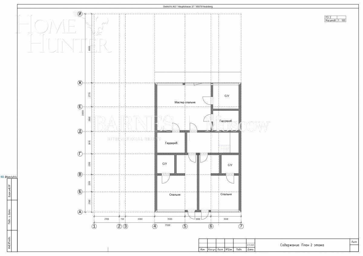
Второй этаж:
Мастер-блок с двумя гардеробными и санузлом — приватная зона для владельцев. Две спальни, каждая с собственным санузлом и гардеробной.
Этот дом — сочетание современного дизайна, высокого качества и функциональности, идеально подходит для тех, кто ищет комфорт и эстетику в престижном месте.
Деревня Лызлово уютно расположилась на опушке густого леса, создавая гармоничный союз природы и комфорта. Рядом протекает живописная река Медвенка, чьи кристально чистые воды добавляют местности особую изюминку.










































