№193232 Зеленая Роща
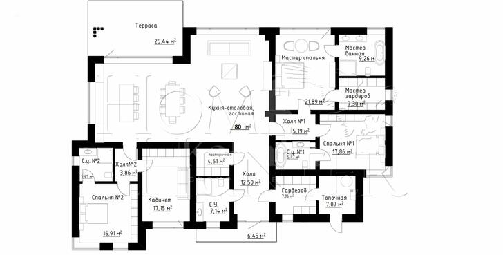
Одноуровневая вилла площадью 275 кв.м на территории коттеджного поселка "Зеленая Роща".
Дом располагается на благоустроенном участке правильной формы площадью 11,5 соток. Тихая застроенная улица в КП — все соседи построены и проживают здесь постоянно.
При строительстве дома применялись лучшие современные материалы: бетонный свайно-ростверковый фундамент, керамический блок и кирпич, облицовочный кирпич ручной формовки, выложенный по индивидуальной раскладке, алюминиевые энергоэффективные окна с двойным стеклопакетом, крыша — битумная бесшумная черепица Tegola.
Главная часть дома — кухня-гостиная общей площадью 80 м² (потолок 4 метра) включает в себя диванную зону с дровяным камином, встроенную кухню с островом и обеденной зоной, а также выход на крытую террасу площадью 27 м².
В доме 4 спальни, три из которых имеют свои с/у и гардеробные. Алюминиевые окна Alutex высотой 3,6 метра, двойной энергоэффективный крупноформатный стеклопакет, площадь остекления фасада более 40%.
В отделке использованы: межкомнатные двери высотой 3 метра из шпона дуба, плитка Porselanosa, французские моющиеся краски Argile, текстильные широкоформатные обои в спальнях, встроенная кухня с островом и стеллажи из шпона дуба. Установлена шведская техника Acko и плита со встроенной вытяжкой Nikola Tesla.
Теплые водяные полы Rehau во всех помещениях, внутрипольные конвекторы во всех комнатах, котел Vaillant и бойлер на 300 литров.
Сделан дренаж участка и ливневая канализация, выполнена подсветка деревьев, уложен спортивный газон. Выполнена архитектурная подсветка фасада и территории участка.
Все центральные коммуникации (газ, электричество, вода, канализация, оптоволоконный интернет) подключены.
От дома до Москвы-Сити дорога без пробок и светофоров, что позволяет добраться за 40 минут.





































