Арт. 126596094
Ценовое предложение действует до 31.12.2025!!!
Вашему вниманию представляется двухэтажный коттедж площадью 539 м2 на земельном участке 15,29 соток в коттеджном поселке Пестово расположенный в 22 км от МКАД по Дмитровскому шоссе.
- На земельном участке в 15,29 соток: расположен современный двухэтажный дом с большими окнами, балконной группой, гаражом, бассейном с сауной.
Основной дом с камином на дровах - 294 м2:
Фундамент - монолитная плита;
Материал - кирпич, монолитные перекрытия;
Дом обшит фиброцементным сайдингом;
Коммуникации центральные: газ, электричество, водоснабжение и канализация;
Система отопления: газовый котел;
На первом этаже сделан тёплый пол;
Установленный и оформленный газовый электрогенератор;
Кондиционеры установлены на первом и втором этажах.
Бассейн с сауной – 200 м2:
Пристройка блок с фиброцементным сайдингом. Бассейн 8,2х3,7 м (глубина 1,25-1,7 м), сауна с дровяной печью, гостевая комната с санузлом и собственным выходом наружу.
Гараж - 45 м2.
- Удачное расположение: участок граничит с соседями только с двух сторон, что обеспечивает больше простора и приватности.
- К вашим услугам всего в двух шагах: живописный пруд для вечерних прогулок и ухоженная игровая площадка для самых маленьких (не считая 2,5 км береговой прогулочной зоны)
- Концепция первого этажа: "Публичная зона с характером"
первый этаж становится функциональным центром дома, совмещающим уют, гостеприимство и практичность, где объединены повседневная жизнь семьи и прием гостей. Доминантой интерьера служит камин, вокруг которого выстраиваются зоны для отдыха и общения. Легкий переход в зону бассейна и сауны создает бесшовную среду для релаксации и гостеприимства.
- концепция второго этаж: «Приватная гавань: Зона отдыха»
Грубоватая элегантность деревянных стен на втором этаже делает пространство живым и аутентичным.
Особый шарм спален: изящный балкон открывает живописную картину — динамичную жизнь поселка гармонично дополняют уютные и зеленые участки соседей.
- Дом (законсервирован с 2023 года)
- Надежная и прозрачная история: один собственник, собственность более 5 лет.
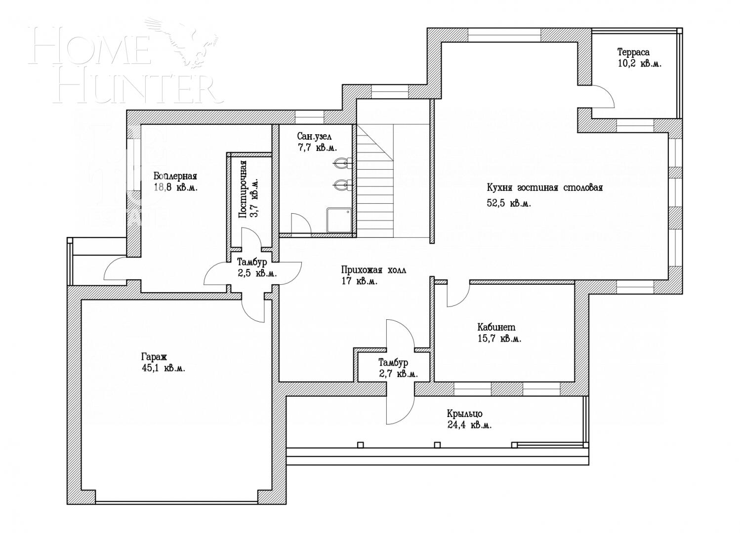
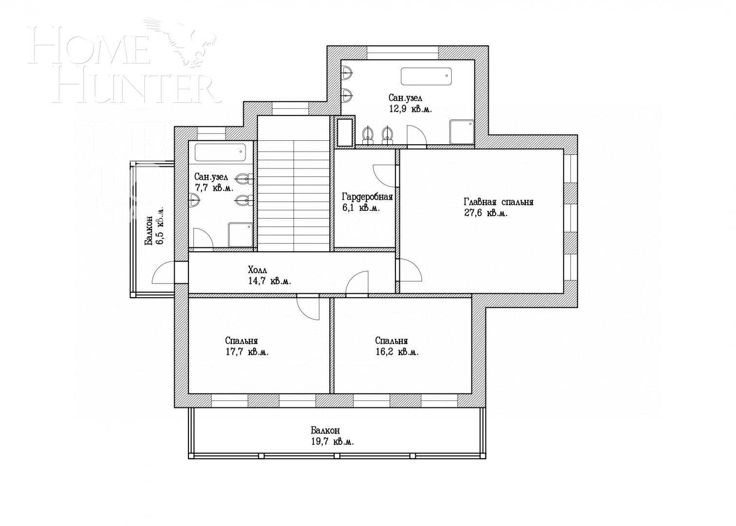
Планировка
Первый этаж: крыльцо, тамбур, прихожая, гараж, тамбур, бойлерная, крыльцо, постирочная, 2 санузла, кухня-гостинная-столовая, терраса, кабинет;
Второй этаж: холл, мастер спальня с санузлом и гардеробом, две спальни с выходом на общий балкон, балкон из хола, санузел.
Пестово – элитный коттеджный поселок, расположенный на берегу Пестовского водохранилища. От поселка до МКАД можно добраться всего за 20 минут, ведь он расположен в 22 км от столицы по Дмитровскому шоссе, при этом Пестово отличается прекрасной экологией: с трех сторон он окружен лесом, а с четвертой находится красивейшая набережная, протяженностью 2,5 км. Собственный залив, яхт-клуб и возможность выхода в основные акватории Европы делают Пестово самым подходящим местом для любителей прогулок на яхте и водного спорта.
При этом поселок Пестово абсолютно пригоден для постоянного, круглогодичного проживания. В поселке есть все центральные коммуникации, торговый комплекс, детский сад, начальная школа, детские и спортивные площадки. На набережной расположен прекрасный ресторан «Мелиора», с видом на Пестовское водохранилище. Так же в поселке Пестово, есть два открытых теннисных корта, волейбольные площадки, универсальная спортивная площадка для игры в футбол, баскетбол. Для любителей зимних видов спорта в поселке сделана хоккейная коробка с теплой раздевалкой. На территории поселка есть свой собственный парк с благоустроенными тропинками и четыре декоративных озера, с благоустроенными зонами отдыха. По близости расположен торгово-развлекательный комплекс «Каштановая роща» со всей необходимым: супермаркет «Азбука Вкуса», аптека, ресторан, салон красоты, магазин игрушек «Киндервиль», детский спортивно-развлекательный клуб с батутным центром, зоомагазин и многое другое. В соседнем поселке «Зеленый Мыс» расположена одна из лучших школ Подмосковья – Ломоносовская школа. Также рядом с поселком Пестово расположен Гольф и Яхт-клуб Пестово.






















































