ID 585799
Продается дом 1000 кв.м. на участке 109 соток в КП Бенилюкс. 20 км. от МКАД по Новорижскому шоссе.
Планировка:
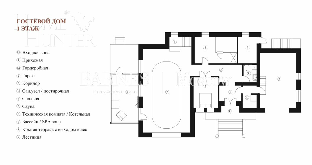
1 этаж: гостиная, кухня, столовая, каминный зал, мастер блок: спальня, гардеробная, санузел; кабинет/спальня с санузлом, техническая комната, 3 террасы.;
2 этаж: 2 мастер блока: спальня, гардеробная, санузел, балкон; гостиная, кабинет.
Коммуникации центральные.
На участке: отдельно стоящий СПА комплекс 250 кв.м. с бассейном, гостевым блоком и блоком для персонала; баня.
Участок с ландшафтным дизайном и рекой. Из них 33 сотки вековой хвойный лес. На территории обустроены пруд, пляж, баня, зона отдыха и барбекю, крытое парковочное место для двух автомобилей.
«Резиденции Бенилюкс» - премиальный загородный комплекс всего в 21 км от Москвы.
Три закрытые территории - Голландия, Бельгия, Люксембург - каждая со своей архитектурой и ландшафтом. Въездная зона «Амстердам» объединяет сервисы и инфраструктуру.
Территория и благоустройство
• полностью вымощенные дороги и прогулочные аллеи
• дизайнерский ландшафт, липовые и кленовые аллеи
• индивидуальное оформление каждого частного участка
Инфраструктура внутри комплекса
• детский сад English Nursery School
• ресторан Ozon с BBQ-зоной и lounge-террасами
• фитнес-центр с бассейном, сауной и крытым теннисным кортом
• продуктовый магазин, салон красоты, автомойка, шоурум бытовой техники
Природа и отдых
• лесопарк 30 гектаров - прогулочные, беговые, веломаршруты
• зимой - лыжня
• разрешено катание на лошадях











































































