№169635 Мякинино
Классическая резиденция площадью 1107 кв.м расположена на просторном участке 66 соток в Мякинино.
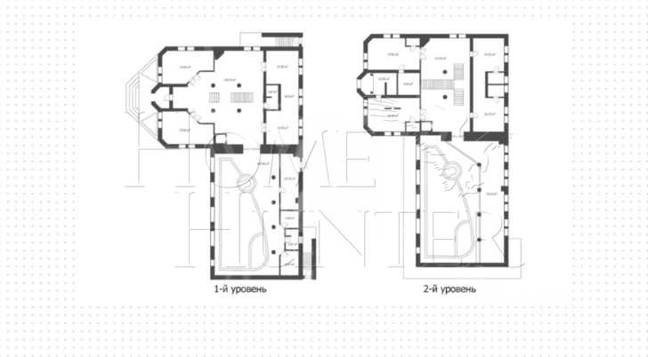
Планировка дома:
Цоколь: холл, домашний кинотеатр, 4 комнаты для персонала, кухня, санузел, хозяйственный блок, технические помещения;
1 этаж: холл, гостиная, кухня, столовая, кабинет, санузел, SPA-зона с бассейном, сауной, хаммам, массажным кабинетом и санузлом;
2 этаж: 4 спальни с гардеробными и санузлами.
В контуре дома расположен гараж на 3 м/м, на территории участка- 2 зимние беседки и 1 летняя беседки. На огороженном участке растут лесные деревья и кустарники, вымощены дорожки и оборудовано уличное освещение.






















