№182286 Усадьбы Архангельское
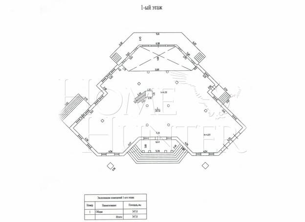
Особняк в классическом стиле площадью 1290 кв. м на участке 21 сотка в охраняемом поселке «Усадьбы Архангельское». Дом в состоянии "без отделки". Фасад отделан натуральным камнем. В доме свободная планировка, 3 этажа, просторные террасы, большие окна. В контуре дома расположен гараж на 2 машины. На участке высажены молодые лесные деревья. Коммуникации центральные, электричество 25 кВт.












