НОВОГОДНЯЯ АКЦИЯ
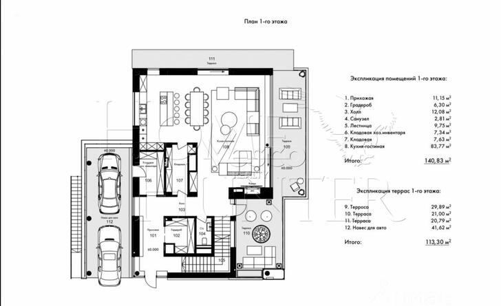
Уникальный хайтек 650 кв.м врезанный в холмистый лесной участок 18 соток.
Готов полностью под ключ с установленной кухней(вся техника Asco).
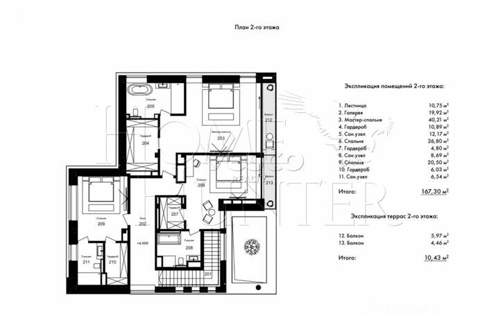
Кухня-толовая-гостиная 84 кв.м с выходами на террасы 70 кв.м, 3 спальни(40,26 и 20 кв.м) с ванными комнатами, гардеробными и балконами, сауна и хамам с комнатой отдыха 50 кв.м с выходом на патио, 2 блока для персонала, на вес на 2 авто.
Высокие потолки, просторные помещения, модная отделка, система приточной вентиляции, шторы с электроприводом и многое многое другое.
На участке помимо вековых сосен есть барбекю павильон 70 кв.м со стеклянной стеной, а так же зона костровища.
В шаговой доступности есть большой водоём с возможностью порыбачить, а так же Павловская гимназия и ТРЦ Павлово Подворье
Дом находится в тихой уединённой коттеджной застройке с солидными соседями, въезд через шлагбаум.
Все действующие коммуникации.
Участник AREA - Ассоциации Агентств Элитной Недвижимости










































































