Современный Одноэтажный кирпичный дом в стиле минимализм общей площадью 302 кв.м полностью готовый к проживанию в камерном коттеджном поселке в 35 км от МКАД.
Дом расположен на лесном участке площадью 13 соток в окружении вековых деревьев, тишины и статусных соседей. Атмосфера редкой уединенности и природной гармонии, при этом с отличной транспортной доступностью и городской инфраструктурой в радиусе 10 минут.
Архитектура дома - отражение актуальных трендов частного строительства: лаконичные формы, много света за счёт панорамного остекления, высококачественные материалы, высокие потолки и единый ритм пространства.
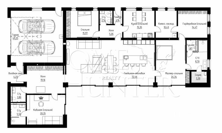
Планировка идеально сбалансирована:
мастер-спальня с отдельной гардеробной комнатой, с/у с сауной.
кухня-столовая-гостиная выполнены единым пространством.
вторая спальня - со своим с/у.
третья спальня с санузлом и с отдельной кухней, которая трансформируется под любые нужды.
котельная/постирочная, отапливаемый гараж на 2 авто, гостевой санузел.
Особенность дома - эксплуатируемая плоская кровля, на которой можно обустроить террасу, лаунж-зону, бассейн или даже второй этаж. Это дополнительный потенциал для расширения и индивидуализации пространства.
Кухня полностью укомплектована бытовой техникой: варочная панель, посудомоечная машина, холодильник и морозильная камера - все ASKO, духовой шкаф и микроволновая печь - Bosch. Столешница острова на кухне изготовлена из кварцевого камня - эстетика, прочность и удобство. В гостиной добавляет уюта дровяной камин.
Продуманная инженерия: приточно-вытяжная вентиляция TURKOFF с рекуперацией и подогревом от водяного отопления, канальное кондиционирование, водяные тёплые полы, пожарно-охранная сигнализация. Дом обслуживает конденсационный газовый котел BAXI Platinum, для непредвиденных ситуаций есть дополнительный электрический котел. По всему периметру ведется видеонаблюдение. При входной двери установлены рольставни. Входная дверь премиум-класса от PROFILDOORS с умным замком - идеальное сочетание безопасности, технологий и дизайна. ОСТЕКЛЕНИЕ - раздвижные алюминиевые конструкции Alutech во всю ширину стен с 2-камерными стеклопакетами, состоящим из 3х закаленных 6 мм стекол с мультифункциональным покрытием и аргоном. Гаражные ворота Хёрманн(Германия).
На участке соток выполнен ландшафтный дизайн с японским садом, растут многолетние сосны, березы, по всему периметру высажены елки. Вечером дом утопает в мягком свете, а шорох леса создаёт атмосферу абсолютного покоя.
Посёлок тихий, приватный, в окружении соседи с высоким уровнем требований к жизни за городом. Это не просто место, это стиль жизни: тишина, лес, современная архитектура и технологичность.
Рядом несколько школ, включая Первый Лицей, 8 детских садов, сетевые магазины, работают службы доставки, бытовые услуги. Удобная транспортная доступность - за 30 минут можно добраться на автомобиле по Киевскому шоссе, Минскому шоссе либо Можайскому шоссе, а также по платной дороге.
Участник AREA - Ассоциации Агентств Элитной Недвижимости






























































