ID 583806
Продается новый дом с ремонтом 650 кв.м. на участке 18 соток в КП Веледниково (в охране). 17 км. от МКАД по Новорижскому шоссе.
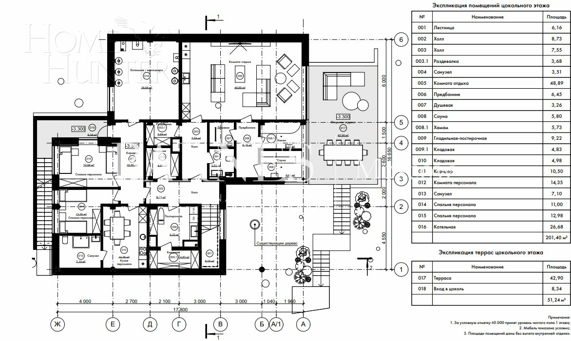
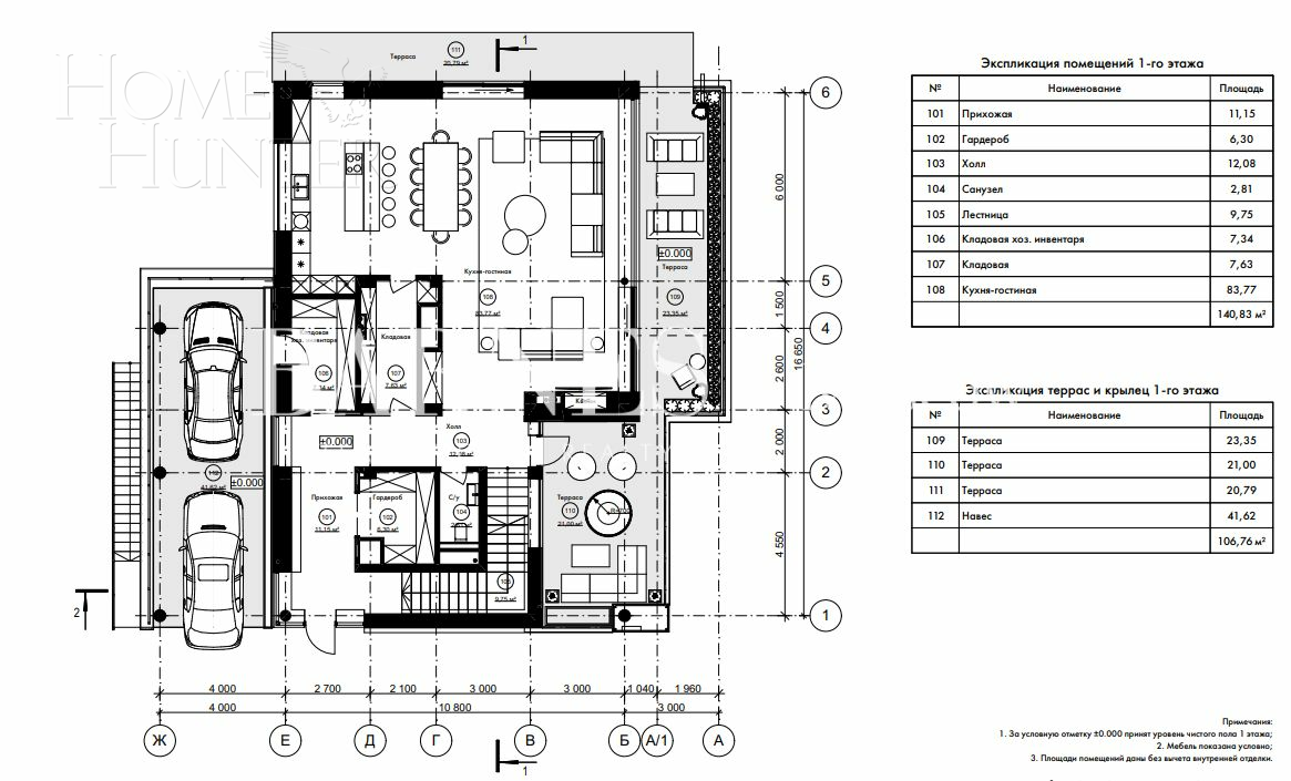
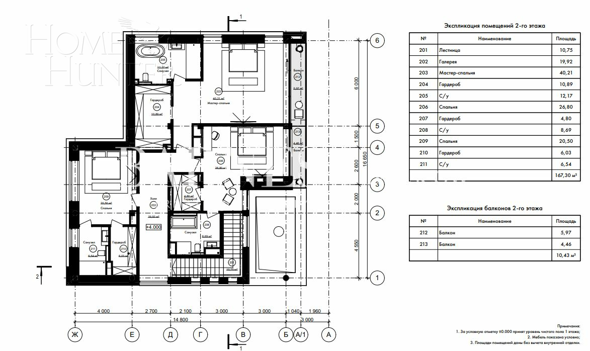
Планировка:
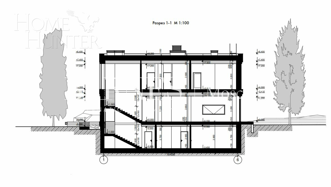
Цоколь: лаундж зона: комната отдыха с кухней и выходом на летнюю террасу, сауна, хамам, душевая, раздевалка, с/у; блок персонала: 2 спальни, кухня/столовая, с/у; постирочная, 2 кладовые, котельная;
1 этаж: холл, гардеробная, гостиная-столовая с камином и выходом на террасу, кухня с островом и кладовой, с/у, навес на 2 м/м;
2 этаж: мастер-спальня с гардеробной, с/у и балконом, 2 спальни с гардеробными, с/у и балконом.
Коммуникации центральные.
На участке крытая беседка с камином.
Участок с ландшафтными работами: газон, дорожки, декоративные насаждения.
Веледниково - камерный усадебный поселок на берегу реки Истры, окруженный густыми лесами и чистой природой. Территория полностью обеспечена центральными коммуникациями: магистральный газ, электричество до 35 кВт, централизованное водоснабжение и современные очистные сооружения. Удобный и быстрый подъезд по Новорижскому шоссе позволяет комфортно добраться до Москвы всего за несколько минут от МКАД.







































































































