Лот №59203. Дом под ключ 193 кв.м. на участке 5.00 соток. Количество спален: 4. Коттеджный посёлок «Павловы озера», Новорижское шоссе, 20 км от МКАД. Участок правильной прямоугольной формы, газон, туи по периметру забора. Парковка для автомобилей. Коттеджный поселок «Павловы озера». Новый дом в стиле хай-тек, полностью под ключ, частично меблирован. Конструктив: монолитный фундамент и перекрытия, стены — газоблок, плоская кровля.
Интерьер выполнен в современном стиле, в мягких, светлых тонах. Гостиную украшает биокамин. Панорамные окна делают дом просторнее и светлее даже в пасмурные дни. Современные световые решения. Кухня оборудована всей необходимой техникой.
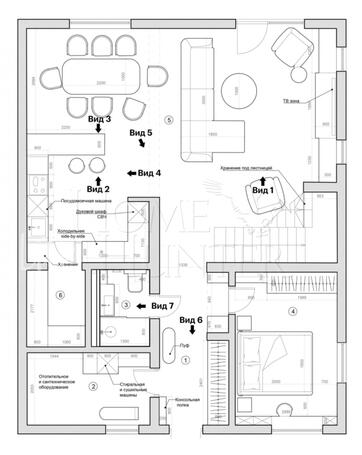
Комфортная планировка с четырьмя/тремя спальнями, гостиной-кухней-столовой. Всё продумано до мелочей.
Все центральные коммуникации.
Поселок строго охраняемый, широкие дороги, детские и спортивные площадки, озеро с пляжем, ресторан. Высокоразвитая инфраструктура района. Планировка дома: 1 этаж: прихожая, гостиная-кухня-столовая, кладовая (при кухне), с/у, гостевая спальня/кабинет, бойлерная/постирочная.
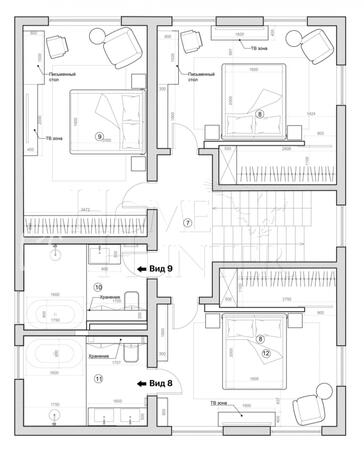
2 этаж: холл, мастер-спальня с гардеробной, расположены 3 спальни, одна из которых является мастер-спальней с с/у и гардеробной, две спальни, санузел и гардеробная.


















































