Роскошная усадьба на две семьи на участке 178 соток в камерном охраняемом поселке на Новой Риге в окружении лесного массива.
Потрясающий собственный лесной участок площадью 180 соток, из которых 80 соток - в собственности, 100 соток находятся в аренде, имеет свой выход в Истринский лес.
Два равноценных по площади и конфигурации особняка каждый по 1000 кв. метров с внутренней отделкой - white box, построены из высококачественных материалов с соблюдением всех строительных норм, с полностью подведенной системой инженерных коммуникаций.
Фасады зданий облицованы камнем, крыши из натуральной черепицы, а стены домов и дорожки освещаются в вечернее время.
Монолитные лестницы и перекрытия, стены из кирпича.
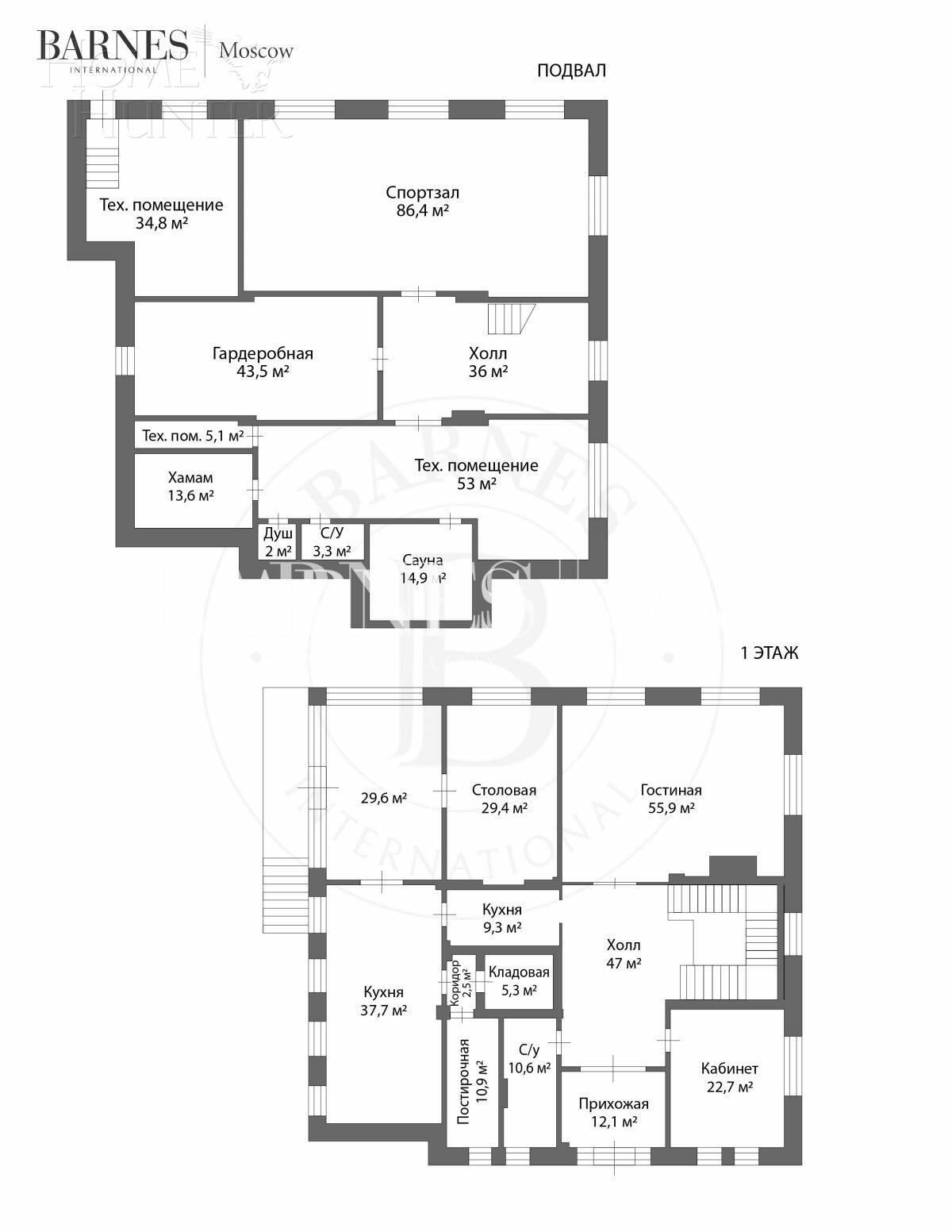
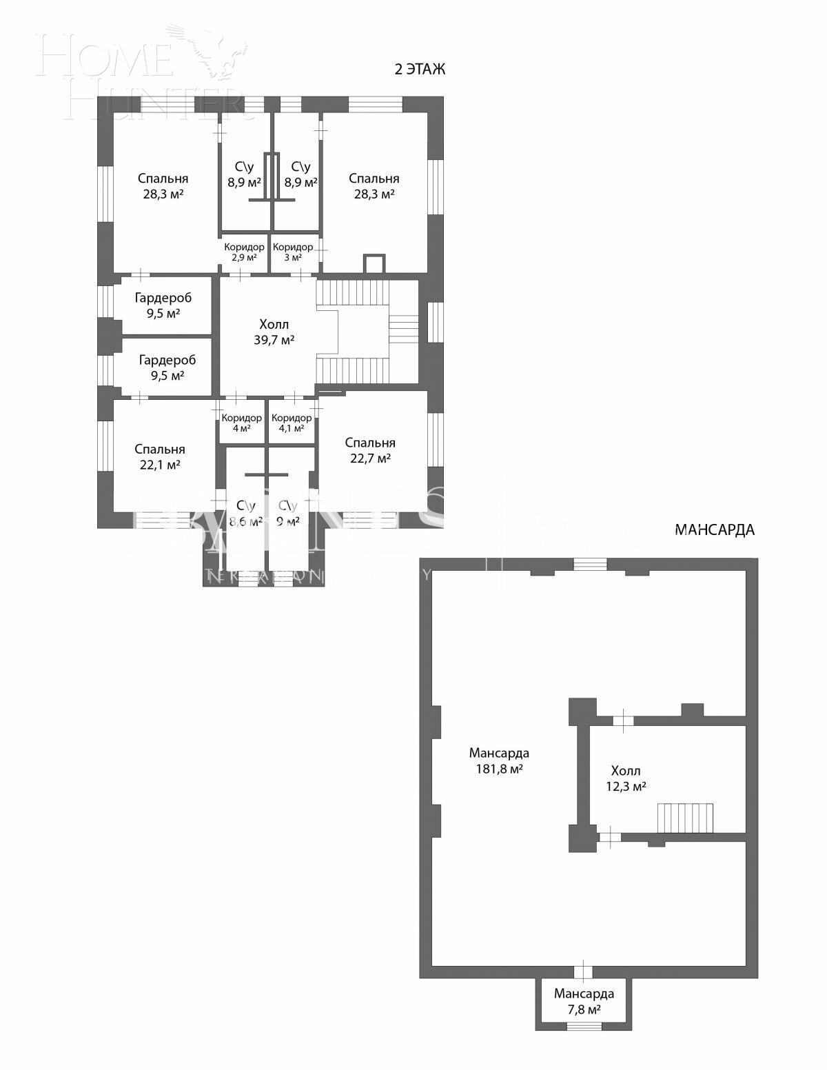
Дома имеют зеркальную планировку. В каждом по четыре спальни с санузлами и гардеробными, кабинет, просторная гостиная, столовая, кухня. Высокий цокольный этаж с комнатами для сауны и хаммама, помещениями для отдыха, спортзала, гардеробной, библиотекой, двумя винными комнатами (с датчиками температуры). Верхний этаж- мансардное просторное помещение с красивейшим видом на лесной участок.
Продуманная планировка участка обеспечит комфортное проживание как для вас, так и для персонала.
Квартиры для персонала площадью по 80 кв.м с двумя комнатами, с/у и кухней, цокольным этажом 100 кв.м. полностью готовы к проживанию.
На территории есть дом площадью 80 кв.м с очагом, зоной отдыха для теплых встреч в семейном, дружеском кругу. и крытая беседка на 181 м², которые представлены с отделками под ключ
Два теплых гаража, каждый на 2 а/м и большая парковочная площадка.
Поселок круглосуточно охраняемый, полностью застроенный и обжитой, с гостевой парковкой. В шаговой доступности аптека, супермаркет, кафе, детский центр, спортивный комплекс, фитнес-центр, Павловская Слобода со своей развитой инфраструктурой: школы, детские сады, магазины, кафе и рестораны.
Звоните и приезжайте на просмотры и сделайте свой выбор в пользу качества, которое обеспечит долговечность вашему дому на многие поколения, с возможностью вдыхать свежий воздух и гулять по собственному лесу среди вековых сосен.


















































































