Лот 37642.
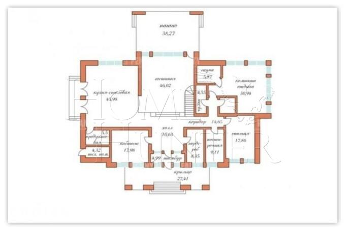
Загородный дом "под отделку" площадью 370 м2 построен на полевом участке 23 сотки в охраняемом КП "Шато Соверен". Проектом дома предусмотрено 4 спальни со своими санузлами, сауна и просторная гостиная-столовая с выходом на террасу. На участке выполнен ландшафтный дизайн.
1 этаж: прихожая, гардеробная, санузел - 1, холл, гостиная, кухня, столовая, терраса, спальня, кабинет, сауна, постирочная
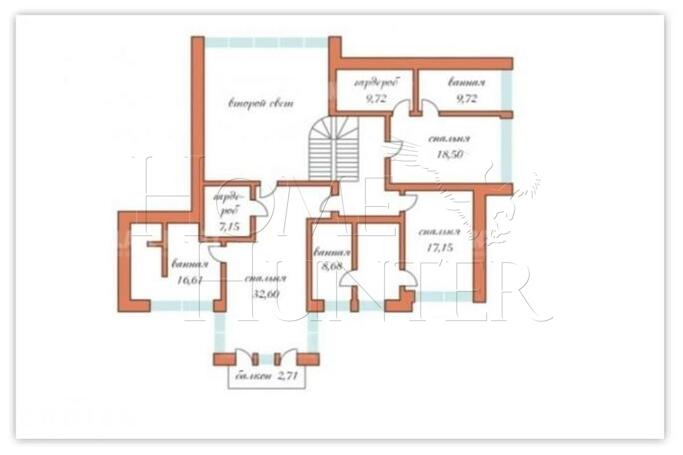
2 этаж: холл, мастер-спальня, ванная комната, гардеробная, спальня с гардеробной и санузлом, спальня с санузлом - 1
Поселок «Шато Соверен» предназначен для тех, кто хочет быть поближе к природе, но при этом не отказывается от городской жизни. До МКАД всего 18 км. В столицу ведут сразу две популярные трассы: скоростное Новорижское шоссе и удобное Рублево-Успенское. Территория поселка достаточно большая – 40 Га. Камерный поселок с комфортными условиями проживания, который сочетает в себе настоящий европейский комфорт и размеренную «дачную» жизнь в полной гармонии с природой. Площадь домов варьируется от 350 до 1500 кв.м. При этом все здания соответствуют одному единственному стилю – строгая неоклассика во всех ее проявлениях. Некоторые дома имеют эффектные элементы русского модерна. В поселке асфальтированные дороги, зеленые парки, множество цветов и деревьев, а также искусственные пруды. Самые маленькие земельные участки начинаются от 22 соток. Территорию окружает лесопарк и речка Истра.
Загородный дом "под отделку" площадью 370 м2 построен на полевом участке 23 сотки в охраняемом КП "Шато Соверен". Проектом дома предусмотрено 4 спальни со своими санузлами, сауна и просторная гостиная-столовая с выходом на террасу. На участке выполнен ландшафтный дизайн.
Конструкция дома: монолит-кирпич
Ремонт: черновая отделка
Газ: магистральный
Электричество, кВт: 15
Канализация: центральная
Водоснабжение: центральное


















