Арт. 101215771
Вашему вниманию представляется светлый и уютный загородный дом, расположенный в тихом дачном посёлке Загорянский, всего в 6 км от МКАД по Ярославскому шоссе. Идеальный баланс между близостью к городской инфраструктуре и ощущением полного погружения в природу.
Дом «под ключ» площадью 675,8 кв. м построен в два уровня на живописном участке 26 соток и станет прекрасным местом для большой дружной семьи. В доме тщательно продумана организация пространства: семь просторных спален, две гостиные для тёплых семейных вечеров, кухня с выходом на открытую веранду, где особенно приятно проводить утро за чашкой кофе, а также кабинет для уединённой работы, очаровательный зимний сад, изолированный блок для персонала и функциональные помещения для хранения и досуга. Дом построен с соблюдением всех строительных норм и требований: фундамент — ленточный; стены первого этажа — кирпичные; в мансардной части — деревянные (брус 200×200 мм); перекрытия — железобетонные; в мансардной части — деревянные; кровля — медная. В 2021 году была проведена перепланировка и выполнены косметические работы.
Внутренний интерьер оформлен в благородном классическом стиле и создаёт обволакивающую атмосферу тепла и гостеприимства. В отделке использованы экологические натуральные материалы: напольное покрытие — паркет; установлены надёжные испанские двери; высококачественные окна (Канада); мебель ведущих мировых брендов Selva и Gervasoni. Для комфорта в комнатах второго уровня и бильярдной установлены кондиционеры. В санузлах и в зоне плитки предусмотрен тёплый пол, котельная оснащена современной системой водоподготовки.
На приусадебном зелёном участке также располагаются: баня, отдельный погреб для хранения вин и заготовок, просторная площадка для парковки и крытый навес на одно машино-место. Для летних вечеров предусмотрена уютная беседка, зона BBQ и скамейки для отдыха. Для любителей создавать красоту своими руками оборудованы две теплицы, реализована система летнего полива. Въездные ворота — автоматические.
Участок украшают вековые липы (10 шт.), сосны (6 шт.), пихты (8 шт.), аккуратный газон, высажены плодовые деревья, кустарники и цветники, что придает саду особый уют. Вечером территория преображается благодаря стильному наружному освещению, которое деликатно подсвечивает фасад, подчёркивая архитектуру дома, и наполняет сад волшебным настроением.
При желании площадь участка можно увеличить ещё на 6 соток.
Коммуникации:
Магистральный газ.
Электричество — 50 кВт.
Водоснабжение — артезианская скважина глубиной 100 м.
Канализация — автономная система «Топас» № 20.
Для обеспечения бесперебойной работы всех систем установлен дизель-генератор марки Lamborghini.
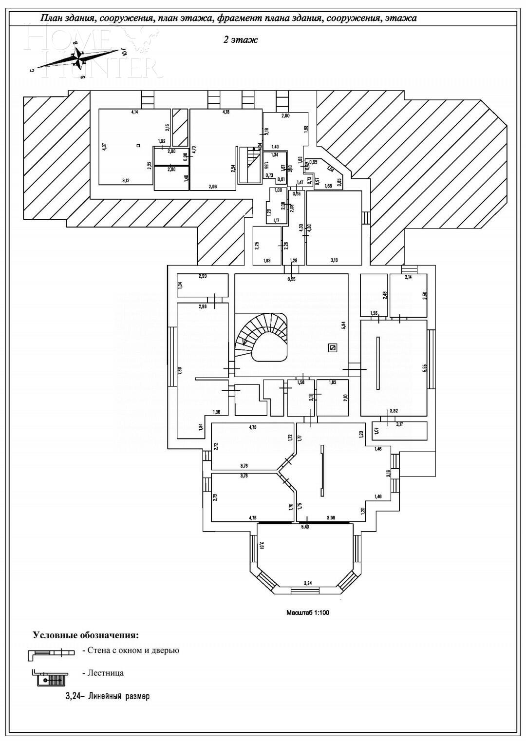
Планировка:
Первый этаж: прихожая, просторный холл, кладовая, кухня, санузел, гостиная, столовая с выходом на веранду, каминная, холл, спальня с ванной комнатой, спальня с санузлом, душевой и гардеробной, сауна, ванная комната, зимний сад, бильярдная, постирочная, котельная.
Второй этаж: просторный холл, спальня с санузлом и рабочей зоной, спальня с санузлом, мастер блок: спальня, два санузла с ванной и душевой, кабинет, две гардеробные; блок для персонала с отделкой white box.
КП Загорянский — живописный дачный посёлок в Щёлковском районе Подмосковья, в 6 км от МКАД по Ярославскому шоссе. Окружённый вековыми лесами, рекой Клязьмой и рядом с заповедником «Лосиный Остров», он идеально подходит для спокойного отдыха и проживания. Развита транспортная инфраструктура: ж/д станция Загорянская обеспечивает удобное сообщение с Москвой. Благодаря удачному расположению поселка возможно пользоваться всей инфраструктурой города Королев.






































































































