Арт. 107982464
ДОМ У ВОДЫ И ЛЕСА
Вашему вниманию представлен роскошный деревянный дом в КП "Сосновый Берег". Дом построен из финского бруса по проекту "Хонка". Полностью готов к проживанию, есть вся необходимая техника. В доме использованы современные технологии - геотермальное отопление. Это экологический чистый вид отопления, в котором используется энергия окружающей среды. Большие окна и светлые стены добавляют пространства в доме. На первом этаже есть большая терраса, на втором этаже балконы с видом на шикарный участок на котором растут вековые хвойные деревья. Окна сделаны из дерева - сосна. Пол и лестница сделана из лиственницы. Мебель в доме выполнена по индивидуальному заказу - натуральная сосна. В доме есть сауна с зоной отдыха. На участке организовано место под барбекю. Природный ландшафт участка создает картину нетронутой природы. Полное ощущение уединения в лесу позволяется полноценно отдохнуть и насладиться природой. Если вы хотите найти уникальное место не только для отдыха, но и для постоянного проживания - это идеальное место для Вас! Приезжайте всей семьей и Вы захотите остаться надолго в поселке Сосновый Берег!
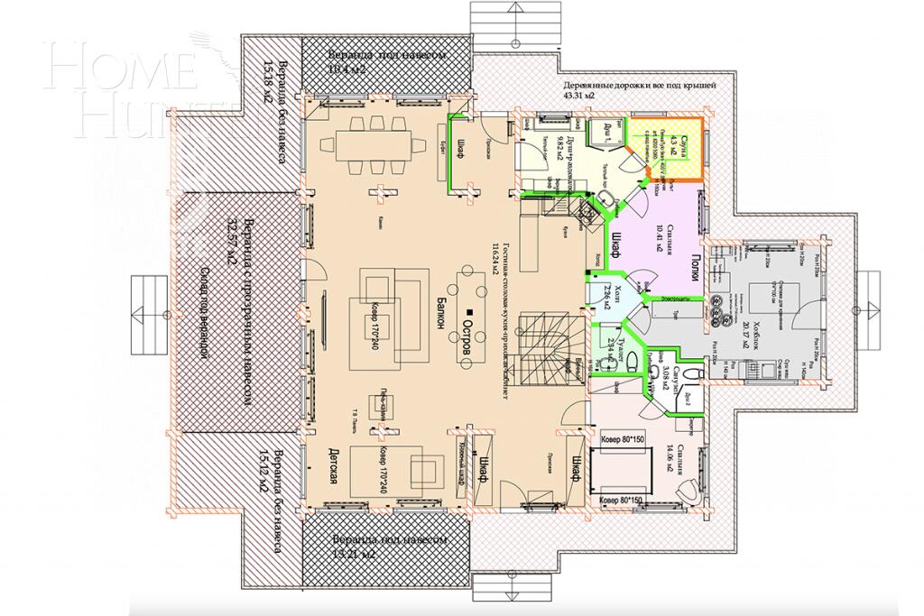
Планировка
Первый этаж: гостиная, столовая, кухня, спальня с санузлом и душем, сауна с комнатой отдыха (возможно сделать комнату или кабинет) и душ, гостевой санузел, хозяйственный блок с постирочной и котельной
Второй этаж: мастер-спальня и санузел с душем и ванной, спальня с санузлом и душем, спальня с санузлом и душевой
Клубный эко посёлок Сосновый Бор - это уникальный поселок, расположенный на самом берегу Истринского водохранилища и утопающий в зелени старинного хвойного бора. Он расположен всего в 45 км от МКАД по Пятницкому шоссе и состоит всего из 16 домов. Все дома в поселке выдержаны в едином архитектурном стиле и построены из эксклюзивного финского клееного бруса. Конечно, Сосновый Берег - это больше клуб, для любителей активного отдыха на природе и любителей водных развлечений, таких как яхтинг, аквабайк, кайт, водные лыжи, рыбалка или же просто возможность позагорать и поплавать, подышать чистейшим, насыщенным хвойным воздухом. Но при этом поселок Сосновый Берег - это прекрасное место для постоянного, круглогодичного проживания, ведь в поселке есть все центральные коммуникации, необходимая инфраструктура, а добраться до Москвы можно всего за 40 минут. В поселке Сосновый Берег Вы найдете отдых на любой вкус: благоустроенный пляж, парковка для катеров, клуб в котором расположен банный комплекс, где вы можете провести время с семьей. Основное кафе с камином и великолепным видом на воду; бильярдная; настольный теннис. На территории есть зимний эллинг для хранения яхт и лодок. Граничит поселок с экопарком “Начинание” в котором организованы многочисленные тропинки для долгих прогулок. В непосредственной близости находится Истра Holiday c бассейном, рестораном и дополнительной территорией для отдыха. Большая территория M'Istra’L (5* звездочный отель) также предоставит лучший сервис для Вас и ваших гостей. Окружение эко поселка Сосновый Берег насыщено инфраструктурой, но в тоже время территория поселка остается прекрасным местом уединения. Территория поселка Сосновый Берег благоустроена и всегда ухожена. За чистотой и порядком следит служба эксплуатации поселка, которая всегда готова оказать любые услуги жителям поселка. Со всех сторон поселок огорожен забором, установлено видеонаблюдение территории, пропускной режим, а также круглосуточное патрулирование территории. Если Вы хотите не просто приобрести деревянный дом на берегу водохранилища, а стать членом настоящего загородного клуба, то поселок Сосновый Берег - это то, что Вам нужно!

































































































