Арт. 94516503
Вашему вниманию представляется деревянный дом 220 кв.м. у леса в деревне Лешково, расположенной на удаленности 21 км от МКАД по Новорижскому шоссе.
В архитектурном проекте данного дома нет ничего лишнего. Панорамное остекление в гостиной установлено с трех сторон практически без стеновых пролетов, что дарит совершенно невообразимое единение с природой – на участок прибегают белки, залетают лесные птицы, открывается потрясающий вид на лес. Находясь в данном доме, ощущается особенная умиротворенность. Дом подходит для круглогодичного проживания всей семьи.
Дом построен по каркасной технологии, облицован планкеном из лиственницы, внутри стены отделаны также лиственницей . С двух сторон дом огибает терраса из импрегнированной сосны. В доме выполнена отделка на первом этаже, спальни на втором этаже без финишной отделки.
Участок, на котором расположен дом, правильной квадратной формы, общей площадью 25 сот. Объект расположен вдали от въездной группы и максимально близко к лесу, что обеспечит будущему жителю уединение и спокойствие. Грунт на участке песчаный, дренаж выполнен по периметру дома. В дом заведены все коммуникации. Канализация организована в виде септика (АНА-200), пробурена скважина, на участок выделено 15 кВт. Дом отапливается газом.
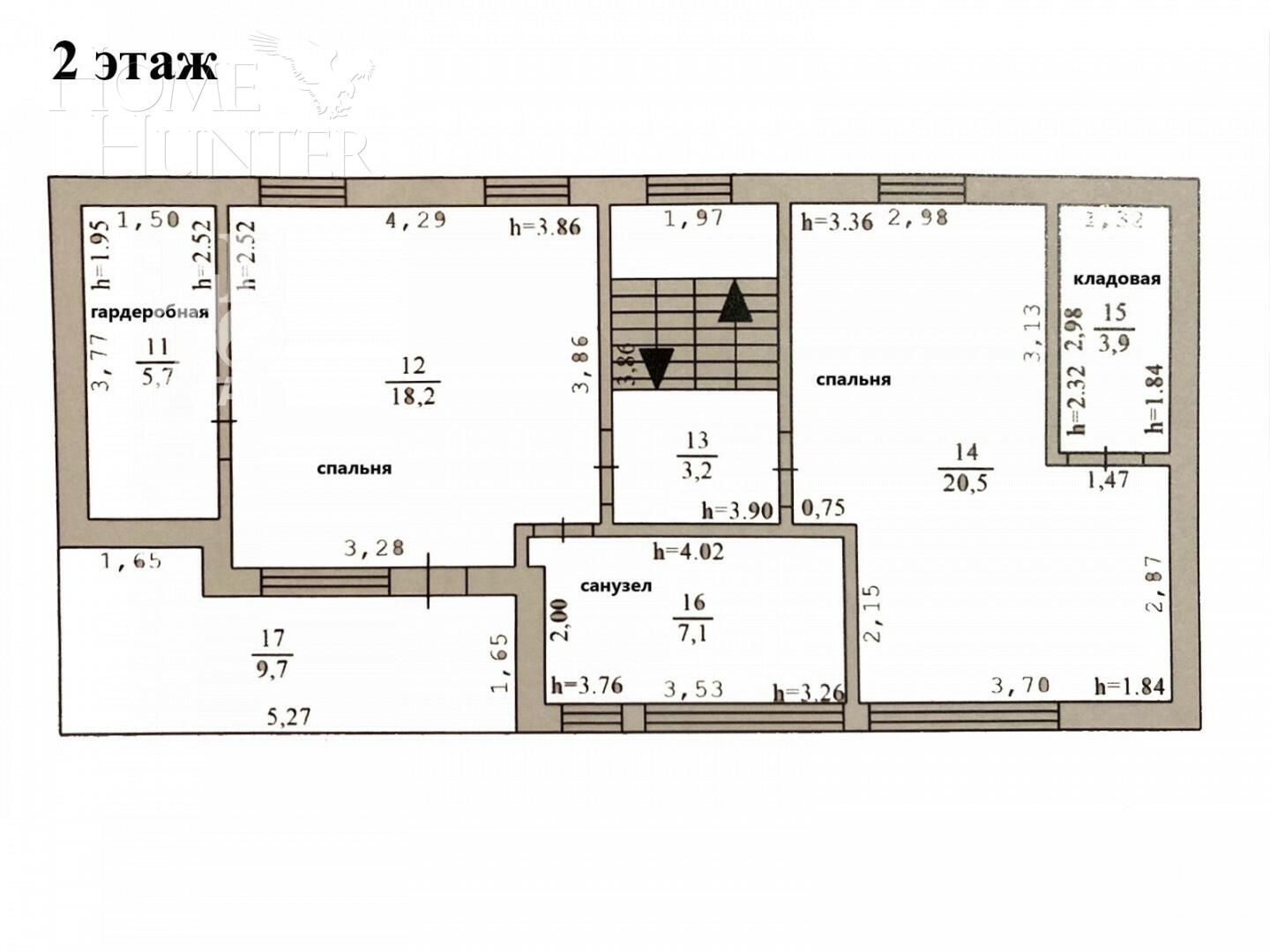
В доме понятная планировка. На первом этаже расположена гостиная с кухней, комната и гараж на два машино-места, на втором две спальни. Доступ в гараж осуществляется также из дома через бойлерную. В каждой спальне предусмотрено помещение для гардеробной.
Планировка:
Первый этаж – бойлерная, гараж на два машино-места, кухня-гостиная, спальня, кладовая, санузел.
Второй этаж – две спальни, санузел.
Особенностью дома является панорамное остекление, что подарит будущему хозяину ощущение простора, дополнительное естественное освещение всего дома и потрясающий вид на лес.
Коттеджный поселок обеспечен превосходной локацией. Расположен всего в 21 км от МКАД по Новорижскому шоссе.
В окружении коттеджного поселка находится обширная инфраструктура. Всего лишь в радиусе 1 км расположена частная школа «Павловская гимназия». В школе работают прекрасные преподаватели, кабинеты обеспечены всем необходимым для обучения оборудованием и техникой, на территории есть отличные спортивные площадки. Выпускники этой гимназии без труда поступают в самые престижные высшие учебные заведения. На территории инфраструктурного комплекса «Павлово подворье» есть все необходимое для постоянной жизни и отдыха:
- продуктовый супермаркет Перекресток
- аптека
- салон красоты
- бутик элитных напитков
- лавка с фермерскими продуктами
- несколько ресторанов (Vasilchuki Chaihona № 1, OMG cafe, Вкусно - и точка)
- отделение банка Сбер Первый
- фитнес клуб World class
- клиника
- детский мир
- зоомагазин
Деревню Лешково отличает прекрасная транспортная доступность.
На машине до поселка можно доехать всего за 15 минут от Москвы по скоростному Новорижскому шоссе. Добраться до коттеджного поселка можно по Новорижскому шоссе. Время в пути до Москвы составит не более 20 минут, до Москва-Сити – 30-40 минут.
Если вам нужно уединение и спокойствие, отсутствие «лишних», то деревня Лешково именно то, что вы ищите.























