№ 2533
Дом 639 кв. м с отделкой, на участке 21 сотка в коттеджном поселке класса "Deluxe" – «Довиль», 15 км от МКАД по Минскому шоссе. Московская область, Одинцовский городской округ, посёлок дома отдыха Озёра.
Ключевые особенности:
индивидуальный архитектурный проект с технологичными решениями в строительстве и дизайне, ремонт "под ключ", меблирован, большие помещения, высокие потолки. Участок с лесными деревьями. Поселок в едином стиле, французская версия, природное озеро с прогулочными зонами.
Конструктив:
фундамент – монолит/лента, стены – кирпич, отделка фасада – облицовочный кирпич/плитка, элементы декора – изразцы, кровля – мягкая черепица.
Внутренняя отделка:
высокие потолки, высокие двери, сочетание натуральных материалов из камня, дерева, кожи с металлом и стеклом, элементы декора современного и классического стиля, стильная современная и классическая мебель, лестница – отделка мрамор, полы – керамогранит и инженерная доска. Полностью меблирован. Вся мебель выполнена на заказ из дорогих материалов.
Коммуникации центральные:
электричество 25 кВт, канализация, водопровод, магистральный газ, ливневая канализация. Системы видеонаблюдения, умного освещения, охранной и пожарной сигнализации, пожаротушения, интернет – оптоволокно.
Планировка:
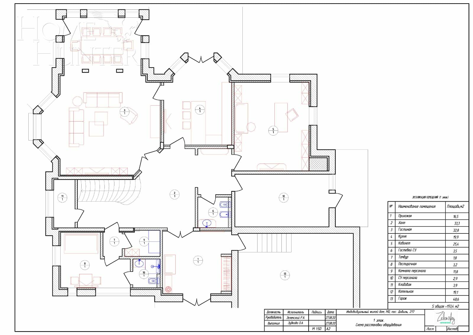
1 этаж: прихожая, холл, кабинет, с/у, кухня-столовая-гостиная с камином с выходами на террасу, постирочная, помещение для персонала, котельная с выходом во двор, гараж на 2 автомобиля;
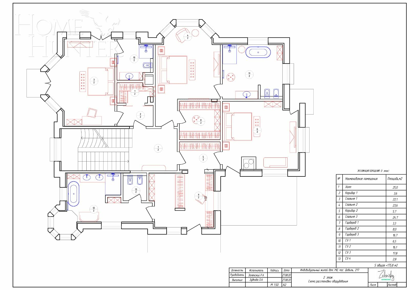
2 этаж: холл, 3 спальни с с/у, гардеробными и выходами на террасу;
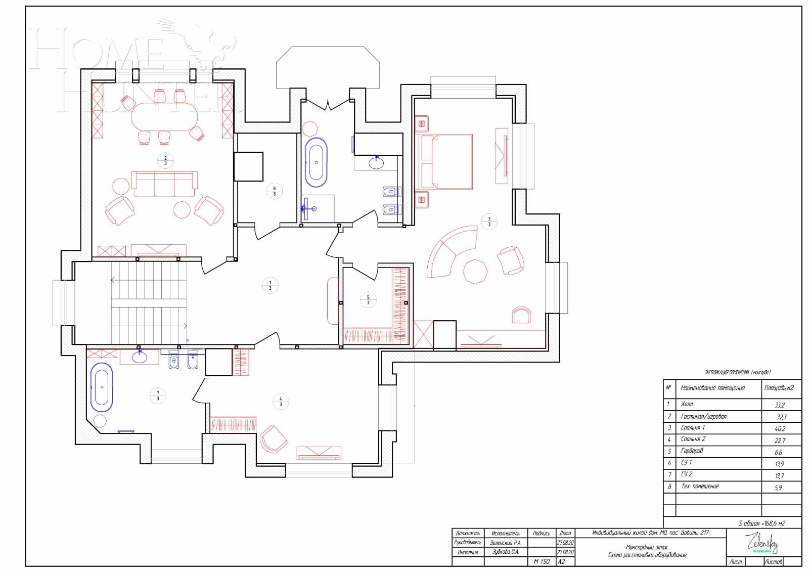
Мансардный этаж: холл, спальня с с/у, спальня с зоной отдыха, выходом на балкон, с/у и гардеробной, гостиная, тех. комната.
Участок:
21 сотка, ровный, огорожен забором на бетонном основании. На участке лесные деревья. Выполнено освещение, парковка и дорожки выложены брусчаткой. Соседи все построены.
Инфраструктура внутренняя:
клубный поселок класса "Deluxe" – «Довиль» построен в едином стиле, французкая версия. Состоит из более 50 домовладений, 35 таунхаусов и 15 квартир.
В поселке многоуровневая охрана, 2 КПП, видеонаблюдение, патрулирование, все центральные коммуникации. Поселок хорошо освещен. Широкие улицы, тротуары, бульвары, природное озеро с прогулочными зонами, причал для лодок и катеров. На берегу – пирсы для рыбалки. Для самых маленьких жителей коттеджного посёлка создана бухта с детскими корабликами. Есть рестораны, кафе, магазины, банкетный зал, спортивные и детские площадки, фитнес-центр с бассейном, косметическим салоном, крытая многоэтажная парковка, администрация.
Инфраструктура внешняя:
в 5 минутах езды инфраструктура пос. Лесной городок, пос. Внуково, г. Одинцово – это школы, поликлиника, медицинские центры, супермаркеты, конные клубы, фитнес-центры, спортивный комплекс с бассейном, гимназия, детские сады, кафе, рестораны. Отличная транспортная доступность по Минскому, Можайскому и Киевскому шоссе. 15 минут по скоростной платной трассе до Москва-Сити.






















































































