Лот №41308. Дом под отделку 550 кв.м. на участке 29.00 соток. Количество спален: 4. Коттеджный посёлок «Полянка», Новорижское шоссе, 44 км от МКАД. Крыша - фальцевое покрытие из финского металлического листа.
Фундамент – монолитный плитный ростверк на буронабивных сваях.
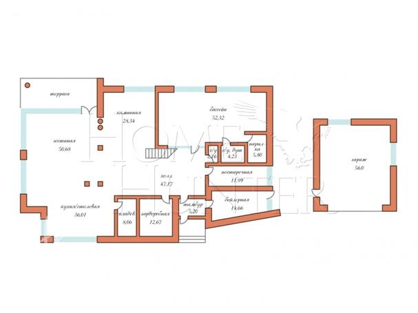
Внешняя отделка - натуральный сланец, немецкая декоративная штукатурка и краска, гранит, сибирская лиственница. Планировка дома: 1 этаж: холл, гардеробная, кухня-столовая с кладовой, гостиная, каминный зал; бассейн с парилкой и душевой, постирочная, бойлерная.
2 этаж: хозяйская спальня с гардеробной и с/у, 2 спальни, с/у, гардеробная, кабинет.














