№159656 Подушкино
Абсолютно новый дом, в современном стиле, с уличным бассейном (10*3.5 с противотоком и подогревом). Расположен в тихом месте, в солидном окружении, рядом с Подушкинским лесом.
Дом обладает продуманной планировкой, позволяющей с комфортом жить большой семье.
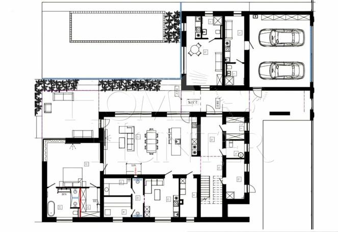
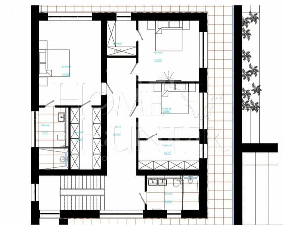
Планировка
1-й этаж: гостиная, кухня-столовая с выходом на террасу, жилой блок со своим выходом на улицу, спальней, кухней и ванной комнатой; СПА с зоной отдыха, сауной и хамамом, гостевой с/у, гардеробная, постирочная, котельная, крытая парковка на два автомобиля с комнатой для охраны/водителя, отдельные гостевые апартаменты, которые могут служить и квартирой для персонала.
2-й этаж: мастер-спальня с гардеробной и ванной комнатами, две спальни с гардеробными, ванная.
В доме магистральный газ, центральная канализация, электричество 25 кВт, своя артезианская скважина.
Близкое расположение к платной трассе Северный обход Одинцово. Идеальный вариант для тех, что хочет жить за городом и, при этом, иметь возможность быстро добираться до Москвы.


















































