ID: 558444
Предлагается прекрасный новый дом под ключ с мебелью в современном стиле, общей площадью 743 кв. м., расположен на участке 15 соток в наиболее развитой части поселка КП Николино.
Планировка:
Цоколь: лестничный холл, котельная, прачечная, кладовка.
1 этаж: прихожая, гардеробная, огромная гостиная, совмещенная с кухней и столовой с выходом на крытую террасу, кухня, гостевой санузел, кладовка, рабочий кабинет с потайной комнатой, гараж на два м/м.
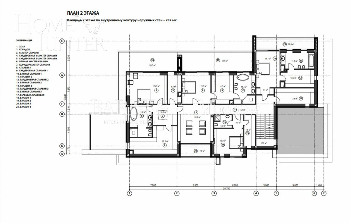
2 этаж: большой холл с выходом на балкон, просторный мастер-блок с большой спальней, двумя гардеробными, большой ванной комнатой и балконом, три спальни с гардеробными и санузлами, одна из которых также с балконом.
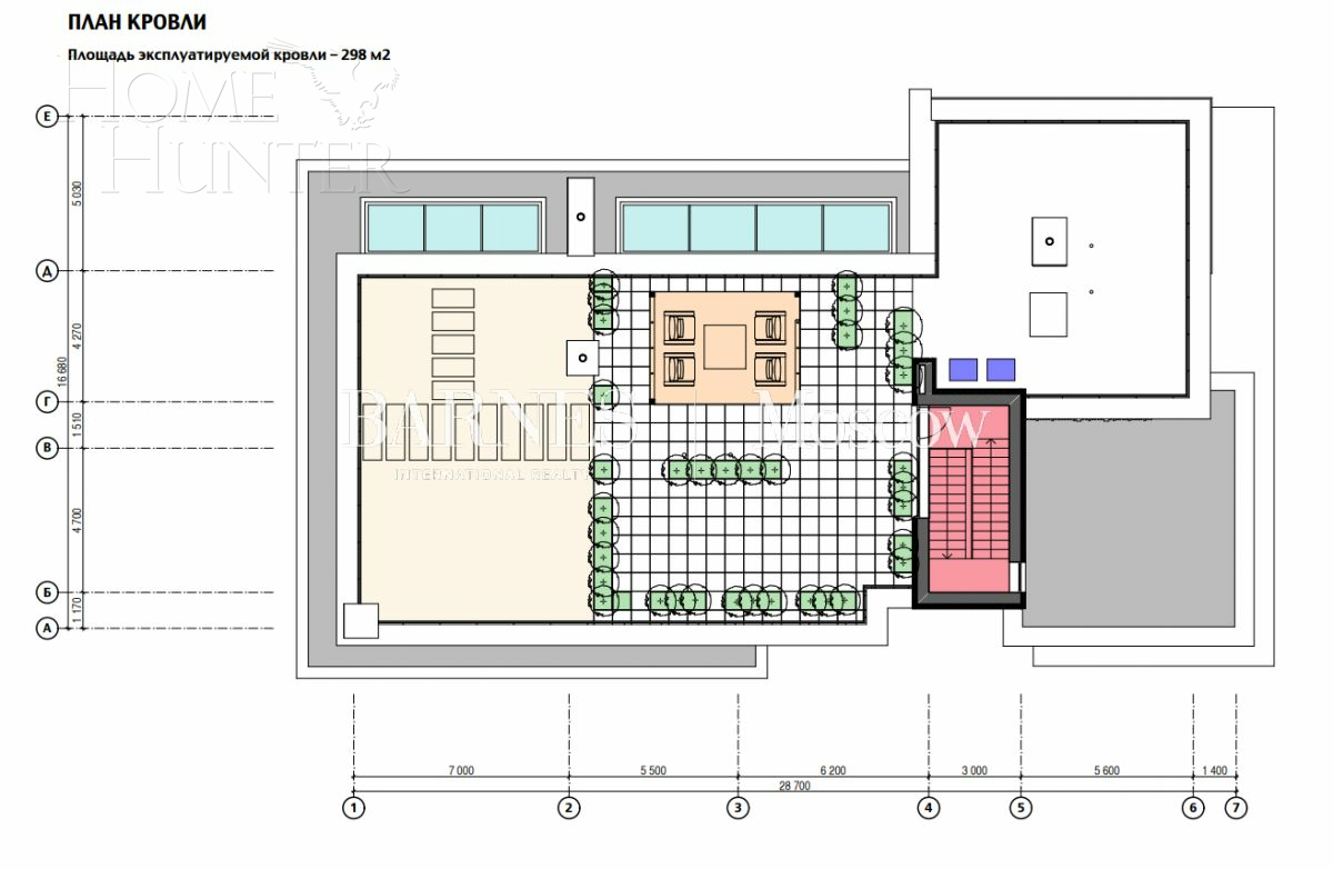
На крыше дома есть эксплуатируемая зона площадью 298 квадратных метров.
Коммуникации центральные.
Участок ровный, правильной формы, с ландшафтными работами: газон, дорожки, освещение, декоративные насаждения.
















































