№010446 Лебединое озеро
Ультрасовременный коттедж 720 кв.м. на участке 19 соток в охраняемом камерном поселке "Лебединое озеро".
Это уникальный архитектурный проект, новаторски развивающий современные мировые тенденции в области архитектуры. Объем, свет, форма и пространство — вот ключевые слова, характеризующие тщательно продуманные конструктивные решения, учитывающие эргономику человека XXI века. Фасад дома отделан натуральным камнем. Панорамное остекление. Просторные светлые помещения. Лифт. Открытая терраса. Немецкие окна females. Установлена система приточной вентиляции и очистка воды, два немецких котла. 6 спален с с/у и гардеробными, 2 кухни. Гараж на 2 м/м и парковка на 3 м/м перед домом.
На участке проведены ландшафтные работы, растут реликтовые сосны и ели.
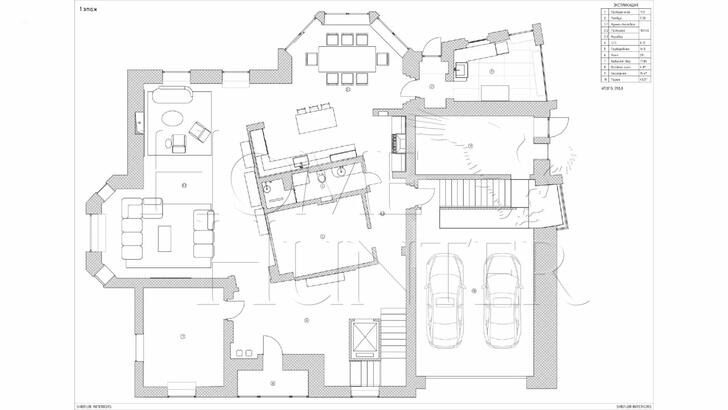
Планировка дома:
1 этаж: прихожая, гардеробная, с/у, лифт, кабинет (спальня), гостиная с камином и выходом на террасу, кухня, столовая, бойлерная, гараж на 2 м/м, постирочная;
2 этаж: холл-библиотека, лифт, кабинет, 3 спальни с ванными и гардеробными комнатами, мастер-спальня с ванной и гардеробной комнатами;
3 этаж: холл, лаунж-зона, 2 спальни с ванными комнатами, кухня, кладовые, эксплуатируемая кровля.









































































