Предлагается к продаже итальянский палаццо в КП Бенилюкс общей площадью 1050 кв.м. на прилесном участке в 108,65 соток.
Двухэтажный роскошный дом окружен хвойным лесным массивом, который насыщает воздух целебными ароматами. Общая площадь основного дома 800 кв.м. На территории участка находится также гостевой дом площадью 250 кв.м. со своей зоной отдыха и бассейном. Основной дом построен из кирпича и монолита.
Первый этаж включает в себя холл, роскошную гостиную с видом на лес, кухню, совмещенную со столовой, спальню для гостей и технические помещения.
На втором этаже имеется еще одна гостиная, большая спальня хозяев с ванной комнатой и гардеробной, а также детская спальня с ванной и детский блок, включающий две детские спальни и игровую комнату.
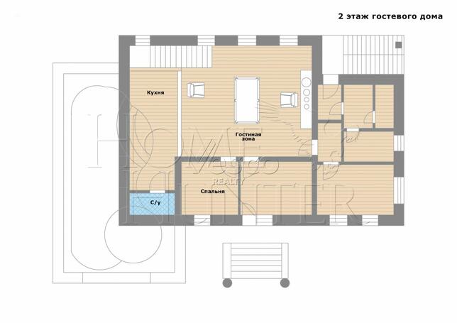
На первом этаже гостевого дома расположен гараж и бассейн, а также баня и зона отдыха со столовой, а на втором - спальня со своей ванной комнатой, кухня и гостиная. Для помощников по хозяйству имеется второй вход.
В домах имеются все инженерно-технические коммуникации необходимые для комфортной жизни. Электроэнергия обеспечивается с распределительных подстанций Павловской Слободы, газовая сеть подключена к магистральной линии, водозаборный узел со станцией очистки воды обеспечивает беспрерывную ее подачу. Проведена центральная канализация с очисткой сточных и ливневых вод.
Благодаря ландшафтным дизайнерам участок вокруг дома облагорожен, высажены роскошные газоны и цветущие растения, а благодаря тому, что часть территории вокруг дома выходит на юг, цвести они будут постоянно. Выложены плиткой прогулочные дорожки вокруг живописного пруда рядом с домом. В пруду водится речная рыба. Вся территория освещается в ночное время парковыми фонарями. Территория участка огорожена кованым забором и кустарниками по всему периметру. Изумительный и живописный ландшафт, комфорт и роскошь дома позволят не только отдыхать здесь в выходные дни, но и проживать круглогодично.
Участник AREA - Ассоциации Агентств Элитной Недвижимости















































