ID объекта: G-6560
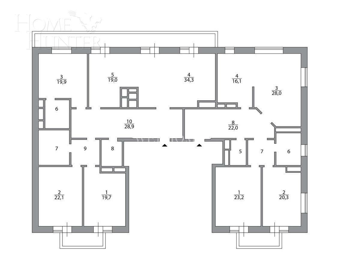
Блок из двух квартир на последнем этаже без отделки, свободной планировки, с дымоходами под камины. Высота потолков 3,5 м.
Возможности планировки: 4-5 спален, каждая 20+ кв. м, кабинет, просторная гостиная с каминной зоной, кухня-столовая, постирочная, 4 с/узла.
Окна на три стороны света, в том числе, в сторону Кремля. Застекленный балкон-терраса площадью 28 кв.м, с панорамным видом на Замоскворечье и Кремль, и два небольших балкона, ориентированных во двор. Большая часть окон - панорамные, выходят на юго-запад, благодаря чему квартиры очень светлые.
Блок расположен на последнем этаже (один на площадке) современного жилого комплекса премиум-класса, включающего в себя четыре дома в неоклассическом стиле. На территории ЖК есть прекрасный семейный клуб с детским садом и различными студиями. Просторная придомовая закрытая территория с ландшафтным дизайном, подземный паркинг с мойкой. Имеются три больших машиноместа рядом, напротив лифта.
Тихое комфортное место между м. Новокузнецкая и Овчинниковской набережной.
































































