Лот №51174. Таунхаус под отделку 238 кв.м. на участке 1.68 соток. Количество спален: 3. Коттеджный посёлок «Futuro park», Новорижское шоссе, 25 км от МКАД. Центральный парк. Планировка дома: 1 этаж: кухня, гостиная, с/у, котельная.
2 этаж: холл, 2 спальни, кабинет, 2 с/у.
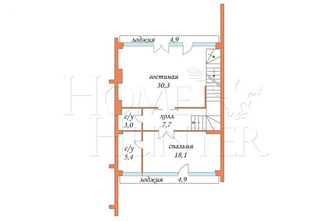
3 этаж: холл, гостиная, спальня, 2 с/у.
Эксплуатируемая кровля.












