ID 584786
Продаётся новый дом 484 кв.м. на участке 12 соток в д. Молодёново. 21 км. от МКАД по Рублёво-Успенскому или Можайскому шоссе. Есть выезд на платную скоростную дорогу.
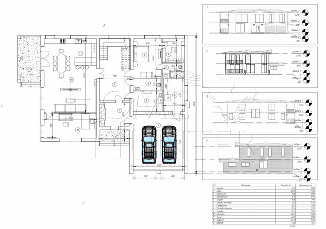
Планировка:
1 этаж: холл, гостиная-столовая-кухня с выходом на террасу, кабинет, спальня с с/у и гардеробной, постирочная, с/у, котельная, гараж на 2 м/м;
2 этаж: мастер-спальня с с/у, гардеробной и балконом, 3 спальни с с/у и гардеробными.
Коммуникации: магистральный газ, вода - собственная артезианская скважина и система водоочистки, канализация - септик с переливными колодцами, электричество 15 квт.
Стены в доме являются дышащими и паропроницаемыми с показателем равным 0,20 мг/(мчПа). Это важный параметр, так как он влияет на комфортный микроклимат в помещении и долговечность конструкции. Стены выполнены из блоков Bonolit D500. Стены являются очень теплыми. Коэффициент сопротивления теплопередаче стены из блоков D500 толщиной 400 мм составляет 2,8 Вт/мC, что соответствует современным требованиям по теплозащите зданий в Московской Области, но мы утеплили стены еще на 100 мм каменной ватой это дает идеальную защиту от потери тепла. Декорированные стены качественной немецкой клинкерной плиткой.
Крыша. Усиленная теплоизоляция и качественная мягкая черепица. Самый практичный и долговечный материал после меди.
Панорамные окна от Оконного континента выполнены из премиального профиля REHAU. Много света, воздуха и тишины.
Участок ровный, правильной формы, огорожен, с ландшафтным дизайном: газон, дорожки, декоративные насаждения.




















































