№200844 Павлово Village
Предлагается коттедж 348 кв.м. на участке 16,03 соток в охраняемом поселке Павлово Village. Мини-поселок с беспрепятственным доступом к территории КП "Павлово-2".
В доме 2 уровня, панорамное остекление, 4 спальни с с/у, просторная гостиная с выходом на террасу. Материал стен – крупноформатный керамический блок.
Коммуникации центральные: электричество - 16 кВт, КНС, водоснабжение, газ
Дом предлагается в состоянии Grey Box. Срок полной готовности - сентябрь 2026 г.
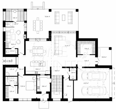
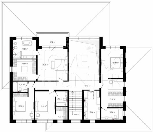
Планировка дома:
1 этаж: прихожая, с/у, гардеробная, гараж на 2 м/м, гостиная со вторым светом, кухня с обеденной зоной, столовая, спальня с с/у и гардеробная, тех.помещение, СПА-зона (комната отдыха, с/у, сауна, душевая).
2 этаж: холл, мастер-блок (спальня, с/у, гардеробная, балкон), 2 спальни с с/у и гардеробной, постирочная.


































