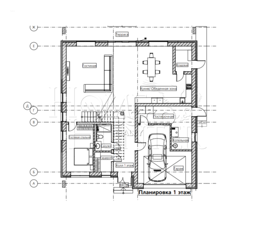
1 этаж: гостиная-кухня-столовая, кладовая, гостевая спальня, холл, гардероб, с/у, постирочная, гараж;
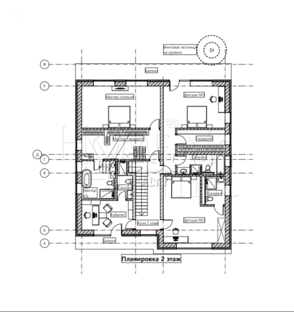
2 этаж: мастер-спальня с ванной комнатой и гардеробной, детская спальня с ванной комнатой и гардеробной, спальня с с/у, кабинет с с/у, балкон.
В доме высокие потолки и панорамное остекление, открывающее вид на благоустроенный прилесной участок. На участке высажены декоративные растения, засеян газон, перед гаражом выложена площадка из брусчатки.
Участник AREA - Ассоциации Агентств Элитной Недвижимости











