Концепция виллы представляет собой эксклюзивный трехэтажный дом, интегрированный в природный ландшафт.
Архитектурная уникальность виллы - противопоставление разнонаправленных прямоугольных объемов, которые очень удачно обыгрываются в интерьере с помощью двухсветных пространств и разноуровневых террас.
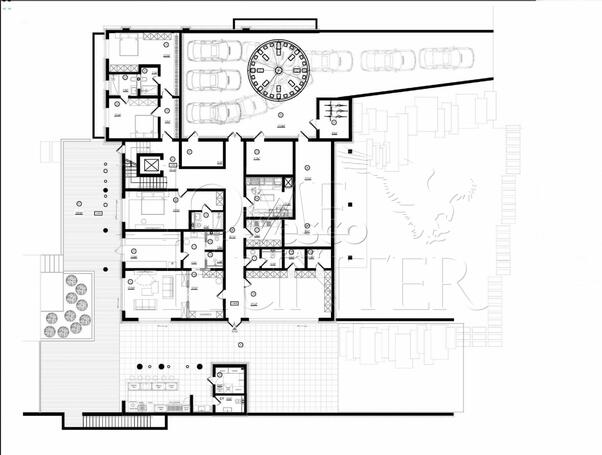
Цоколь: Спа-зона (сауна, душевая, с/у, раздевалка) комната отдыха с выходом на террасу с зоной барбекю; гостевая спальня с ванной комнатой, рабочая кухня, постирочная, с/у, блок персонала (2 спальни с с/у), технические помещения, большое помещение хранения сезонных вещей, гараж;
1 этаж: гостиная, столовая-кухня с кладовой, кабинет, прихожая, гардеробная, 2 гостевых с/у;
2 этаж: малая гостиная, просторный мастер-блок с 2 гардеробными и ванной комнатой, 4 спальни с ванными комнатами.
Главная визуальная особенность Villa Q - понижение ландшафта с обеих сторон здания: с одной стороны формируется въезд в подземный гараж, а с другой - можно заглянуть в зону отдыха цокольного этажа.
Витражное остекление высотой более 3-х метров по всему периметру добавляет вилле легкости и света.
Фасады виллы обшиты натуральным камнем. Детали фасада - термообработанный ясень. Установлены алюминиевые окна Schuco, панорамные раздвижные порталы высотой 3 м. Система кондиционирования Daiken. Система вентиляции Breezart. Форсуночная система увлажнения воздуха Airwet. Зарядка для электромобилей. Уличная парковка с подогревом. Система умный дом. Разворотный круг в гараже.
Участник AREA - Ассоциации Агентств Элитной Недвижимости






























