Предлагается стильный каменный одноуровневый коттедж в современном стиле от известного архитектора Matti Iiramo. Дом 476 кв.м из финского утепленного термоблока расположен на участке 23,64 соток в камерном охраняемом поселке в Горках-2. В контуре дома расположена сауна с обшивкой из термообработанной осины. Фасад дома отделан натуральным камнем и термодревесиной. Конструктив дома - финский утепленный термоблок. Данный проект предусматривает гараж на одно машиноместо, который пристроен к дому и представляет собой блок для проживания персонала.
Уникальность дома не только в его архитектуре и стильном интерьере, но и в том, что участок находится обособленно от других домов. Из больших панорамных окон открывается прямой вид на озеро, а также благоустроенный парк.
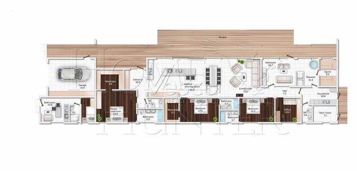
Планировка дома:
1 этаж: прихожая, гардеробная, с/у гостевой, холл, гостиная – кухня – столовая, постирочная с отдельным входом, сауна, душевая, комната отдыха, с/у, кабинет, 3 спальни с с/у и гардеробными, просторные террасы по периметру дома.
Участник AREA - Ассоциации Агентств Элитной Недвижимости








































