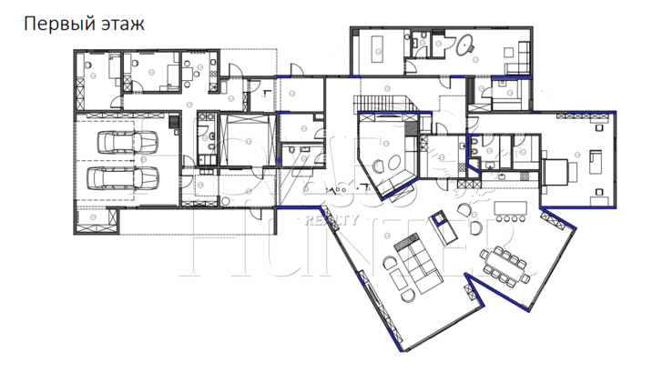
Дом 970 м2 (в ЕГРН 842.9) / Пристроили новый гараж с квартирой для персонала, зону СПА. (Разрешительные документы на перестройку есть)
Фасад: клинкерная плитка Feldhaus Klinker / натуральный сланец / подшивка из лиственницы
Окна: Schuco
К дому пристроена терраса - Террасная доска из лиственницы
Мембранная плоская кровля
Приточно-вытяжная система Breezart / кондиционирование Daikin - выполнено под ключ, запущено
Умный дом (шторы, климат и музыка)
Гаражные ворота Alutech
Электричество 35 квт
Внутренняя ливневая канализация. Выполнена инженерная часть по сантехнике и электричеству (сделана подготовка под установку сантехнического оборудования, смесителей, полотенцесушителей, сделаны выводы по розетки и выключатели)
Установлены Конвектора Molenhoff, радиаторы Arbonia
Потолки - 3.20
С/у - в основном это Antonio Lupi (не закуплены только тумбы) раковины, смесители Gessi, Hansgrohe, ванны Knaufe.
Блок для персонала с отдельным входом: душевая / постирочная, с/у, кухня, котельная, 2 спальни.
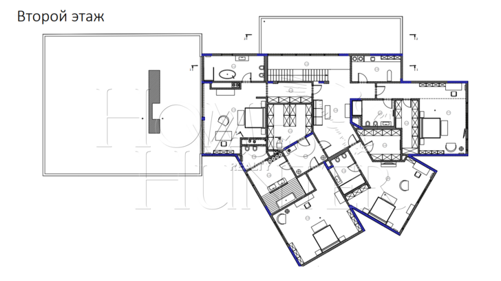
Терраса на 2-ом этаже покрыта доской и природной галькой. Построен уличный дровяной камин. Музыка выходит на террасу второго этажа, террасу первого этажа, спа, кинотеатра.
Есть автополив, ландшафтное освещение, сделан дренаж, ливневая канализация. Выполнен ландшафтный дизайн, застелен рулонный газон. Въездная зона и дорожки выполнены из гранита.
Своя скважина с водой (идеальный состав) разрешение и документы на скважину есть.
Участник AREA - Ассоциации Агентств Элитной Недвижимости







































