Продаётся уникальный дом в стиле Фрэнка Ллойда Райта — 380 м² абсолютной гармонии с природой.
Архитектура, которая не подвержена времени: парящая крыша, фасад из кирпича ручной формовки с 3D-кладкой, латунные акценты, безрамное остекление в пол и художественная подсветка превращают дом в арт-объект.
Натуральные материалы и благородные оттенки во внутренней отделке, приточно-вытяжная вентиляция Blizzard и бризеры обеспечивают чистейший воздух и комфорт круглый год. Высота потолков — 3,2 м, двери и зеркала — на всю высоту, что визуально расширяет пространство, создают ощущение простора и света.
Планировка продумана до мелочей:
• Кухня-гостиная 53 м²
• Мастер-спальня с ванной - 23 м²
• Гардеробные, постирочная, винный шкаф
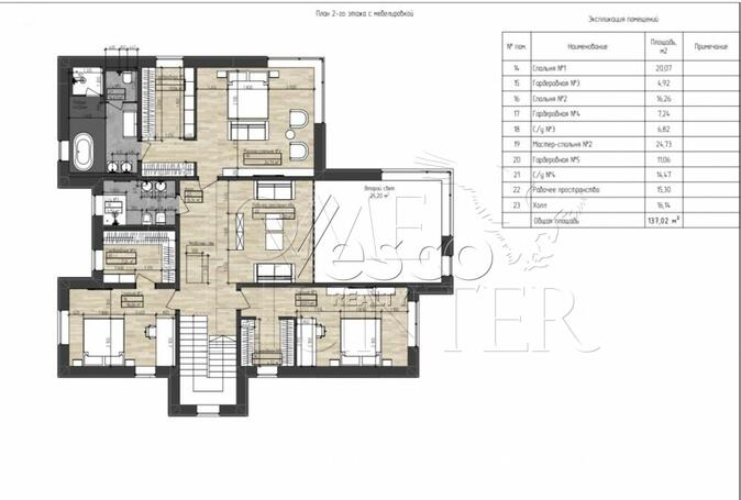
• Второй этаж: мастер-блок - 42 м², две детские, холл с кухней-гостиной - 32 м².
"Умный дом" управляет светом, климатом и шторами по десяткам сценариев. Инженерные сети уровня A+ — экономия и надёжность.
Двор с подогревом плитки, навес на 2 авто, хозблок, две веранды — одна с тёплым полом и панорамным остеклением для круглогодичных встреч на природе.
Участник AREA - Ассоциации Агентств Элитной Недвижимости





























