Предлагается великолепный двухэтажный новый дом с плоской кровлей в красивом месте с видом на реку и лес. Дом построен в современном стиле общей площадью 326 кв.м, на участке площадью 8 соток.
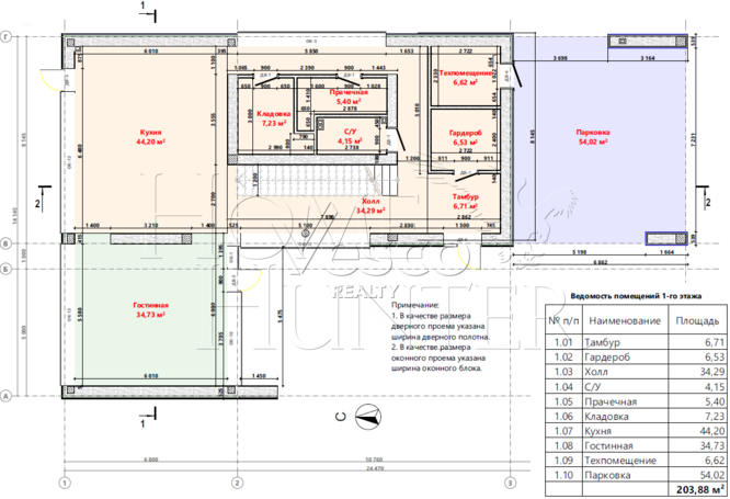
1 этаж: гостиная, кухня, холл, кладовая, постирочная, гардероб, гостевой санузел, техническое помещение;
2 этаж: мастер спальня с гардеробной и ванной комнатой, 3 спальни, ванная комната.
Дом построен в 2025 году по индивидуальному проекту, как энергоэффективный.
Дом построен на монолитном плитном фундаменте. Стены дома возведены из газобетона плотностью D400 шириной 375 мм. Межэтажное перекрытие монолитное, а перекрытие кровли из конструкционных деревянных двутавровых балок с утеплением 400 мм между балками и покрытием из ПВХ мембраны.
В каждой комнате энергоэффективные панорамные алюминиевые окна Alutech.
Дом подключен к газу, электричеству (15 кВт) и высокоскоростному интернету по выделенной оптической линии.
В доме сделана фасадная отделка из декоративной штукатурки + ландшафт. Внутри дом готов под отделку - выполнена базовая штукатурка стен.
Участник AREA - Ассоциации Агентств Элитной Недвижимости















