Арт. 115348949
Представляем Вашему вниманию просторный дом 322,2 кв.м. в стиле Фахверк, уютно расположившийся на участке 12,76 сотки в Коттеджном поселке Резиденции Пестово. Коттеджный поселок бизнес-класса Резиденции Пестово расположен в 25 км от МАКД по Дмитровскому шоссе в непосредственной близости от Икшинского водохранилища.
Изящная форма дома и выразительность создаются благодаря просторной террасе, высоким потолкам и панорамному остеклению, которое словно приглашает Вас насладиться великолепными видами на Икшинское водохранилище. Каждое утро здесь начинается с восхищения природной красотой, которая открывается из окон.
Дом серии Вайнхайм построенный в 2024 году компанией ТАМАК воплощение высокого качества стандарта. В его создании использованы только натуральные природные материалы: уральская ель и сибирская лиственница, негорючая каменная вата, цементностружечные плиты, что обеспечивает здоровье и комфорт жильцов.
Особая Фахверковая технология, основанная на точной ориентации ламелей, придает конструкции исключительную стабильность и прочность бруса. Такой дом не дает усадки, что позволяет сразу приступить к чистовой отделке и быстро воплощать в жизнь самые смелые дизайнерские идеи. Срок службы дома оценивается в 75 лет и более.
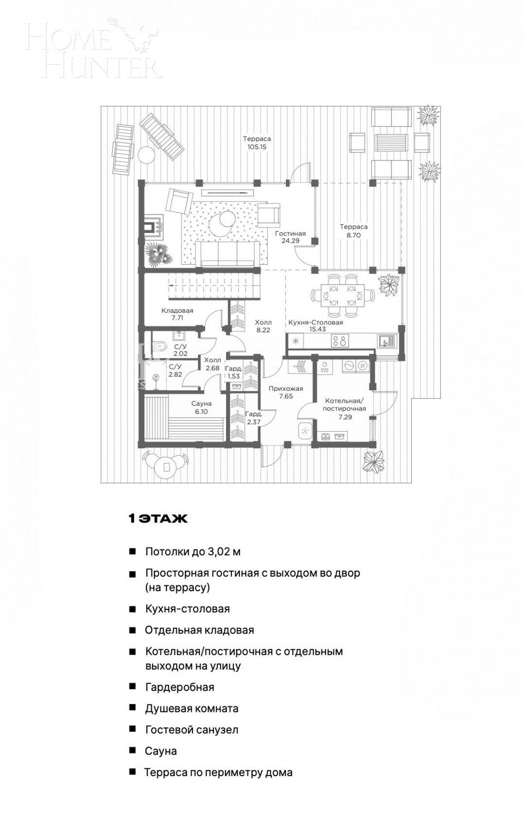
Планировка дома продумана до мелочей. На первом этаже располагается просторная кухня-столовая, гостиная с выходом на террасу, где можно устраивать уютные вечера на свежем воздухе. Дополнительно на первом этаже располагается гардеробная, сауна, два санузла и котельная с отдельным выходом на улицу.
На втором этаже расположена мастер-спальня с собственной гардеробной и санузлом, а также три уютные комнаты с балконами и еще один санузел.
На придомовом участке 12,76 соток можно организовать внутренний дворик и обустроить парковочное место для двух автомобилей.
Все коммуникации в поселке центральные: магистральный газ, электричество 15 кВт, водоснабжение и канализация.
Планировка:
Первый этаж: прихожая, кухня-столовая, гостиная с выходом на террасу, сауна с санузлом, гардеробная, санузел, котельная.
Второй этаж: мастер-спальня с гардеробной и санузлом, детская комната с балконом, гостевая комната с балконом, кабинет с балконом, санузел.
Коттеджный поселок бизнес-класса Резиденции Пестово расположен в 25 км от МКАД по Дмитровскому шоссе в непосредственной близости от Икшинского водохранилища.
Поселок ориентирован на комфортное проживание и отдых на большой воде.
В поселке реализованы современные дома в стиле фахверк с панорамным остеклением. Из окон домов открывается впечатляющие виды на Икшинское водохранилище.
Внутренняя территория поселка обустроена по принципам безопасности, удобства и заботы о резидентах. Спортивные площадки, зоны воркаута и детские площадки способствуют созданию дружелюбной и активной среды внутри поселка. Большое количество детских садов и школ позволят проживать семьям с детьми круглогодично. По широким дорогам и благоустроенным тротуарам будет комфортно передвигаться автомобилистам и пешеходам.
В поселке предусмотрены все центральные коммуникации и собственная управляющая компания.
Быстро добраться из центра Москвы до поселка можно не только на автомобиле, но и на электричке (ближайшая железнодорожная станция Трудовая).









































































