Арт. 76165445
Вашему вниманию представлен 2-этажный дом, расположенный в клубном коттеджном поселке Истра Лэнд-2 в 45 км от МКАД по Новорижскому шоссе.
Проект дома выполнен в современном стиле удовлетворит вкусы самых взыскательных покупателей, так как является плодом многолетней деятельности строительной компании-подрядчика. Дом возведен на монолитной фундаментной плите, стены выполнены из крупноформатного керамического блока Paraterm, окна - двухкамерный стеклопакет, металлическая входная дверь. В проекте дома заложена эксплуатируемая крыша, которая позволит наслаждаться прекрасными видами. Имеется подробная проектная документация с дизайнерскими решениями.
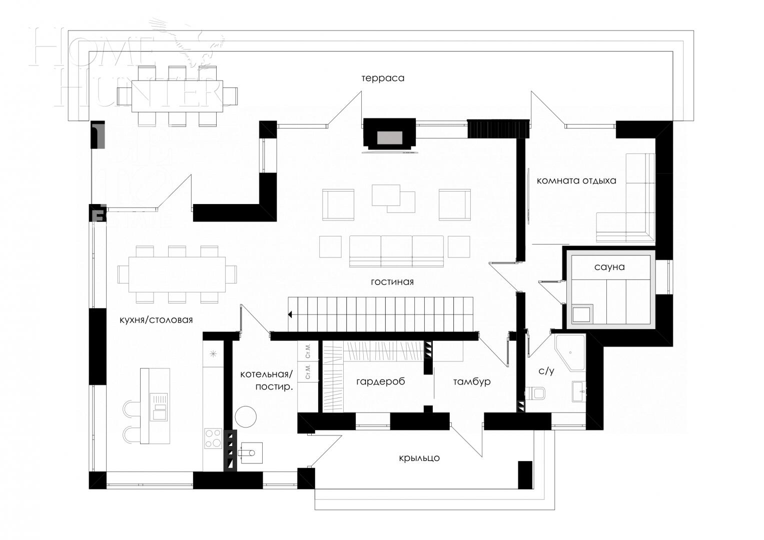
Помимо конструктива дома, продумано до мелочей и планировочное решение: просторные три спальни, большая гостиная, терраса, кабинет, три гардеробные, три санузла и сауна, также по проекту на участке можно разместить бассейн.
Участок правильной и ровной формы. Дома в поселке расположены самым лучшим образом: так, что без возведения больших заборов можно чувствовать атмосферу уединения с природой.
К дому подведены все необходимые центральные коммуникации: газ, электричество, вода, канализация. Есть место для площадки для парковки перед домом и возможно строительство навеса или теплого гаража.
Планировка:
Первый этаж: холл, кабинет, санузел, гарберобная, кухня-гостиная, котельная, терраса
Второй этаж: холл, мастер-спальня, две спальни, санузел, балкон
Коттеджный Посёлок премиум класса «Истра-Лэнд 2» расположен в 45 км от МКАД по Новорижскому, Пятницкому или Ленинградскому шоссе, на полуострове Истринского водохранилища, окруженном лесом. Этот посёлок является частью КП «Истра-Лэнд», вблизи поселка Лопотово, с развитой̆ инфраструктурой.
Поселок состоит из 8 участков и 8 домов. Дома построены по двум разным проектам, но их объединяет единый стиль и единое архитектурное решение.
Поселок расположен на закрытой территории со своим КПП, круглосуточной охраной и видеонаблюдением. Внутри поселка созданы все условия для комфортного проживания: асфальтные подъездные дороги, широкие улицы с тротуарами и освещением, зелёные общественные зоны. Все коммуникации центральные: водоснабжение, электричество, канализация, газ.
Богатство различной инфраструктуры впечатляет:
- в 10-ти минутах езды - круглосуточный продуктовый магазин
- в пешей доступности расположены 3 пляжных зоны: 1 -открытая и 2 – закрытые
- несколько яхт-клубов с эллингами
- в пешей доступности расположен парк для пеших и вело-прогулок
- в 5 минутах езды - общественные спортивные площадки, включая хоккейную коробку
- в 20 минутах - физкультурно- оздоровительный̆ комплекс с круглогодичными занятиями для детей̆ и взрослых: теннисный корт, волейбольная площадка и клуб водных видов спорта с арендой оборудования и инструкторами
Неподалёку также находится клуб «Романтик» с еженедельными спортивными мероприятиями.
Удобное расположение поселка позволяет в течение 50-ти минут на автомобиле добраться до Москвы по одному из трех шоссе: Новорижскому, Пятницкому или Ленинградскому.

































































