id:160919.
Продаётся Двухэтажный дом ПОД ОТДЕЛКУ с уникальным расположением в Павшинской пойме с ПАНОРАМНЫМ ВИДОМ ИЗ ОКОН на МОСКВА-РЕКУ примыкающий к благоустроенной набережной. Закрытая территория. Для тех кто хочет совместить плюсы загородной и городской жизни в одном месте!
Окончание строительства: 3 квартал 2026 года.
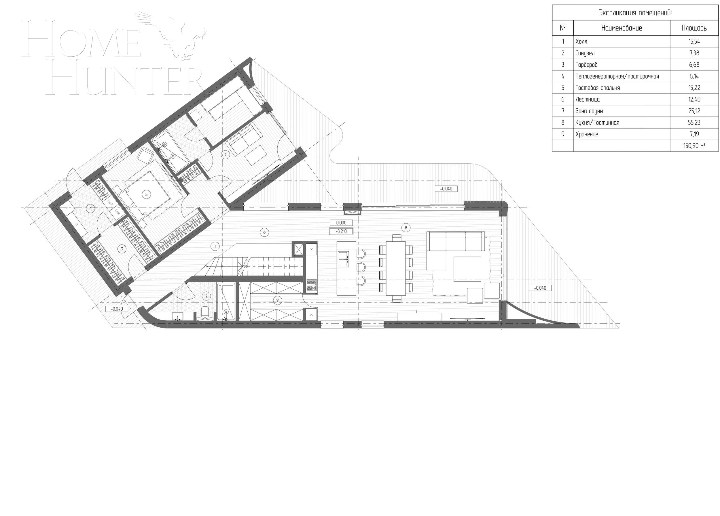
О доме:
Жилая площадь: 257,1 м2. Общая площадь: 406 м2 (с учётом террас и эксплуатируемой кровли)
Тщательно продуманное планировочное решение.
На первом этаже:
-Просторная кухня-гостиная 55м2 со своей кладовой и возможностью установки дровяного камина с выходом на террасу.
- гостевая спальня или кабинет.
-Продуманная прихожая с гостевым с/у, гардеробной комнатной и котельной совмещенной с постирочной.
- Спа зона с комнатной отдыха, сауной и предбанником.
На втором этаже:
- Мастер-спальня со своим санузлом, гардеробной комнатной, балконом и великолепным видом из панорамных окон на Москва-реку
- Две просторные спальни с панорамными окнами и выходом на эксплуатируемую кровлю.
-Общий санузел на этаже.
ТЕХНИЧЕСКИЕ ХАРАКТЕРИСТИКИ:
- Фундамент: монолитная плита на ЖБ сваях.
- Конструкция дома: монолитные перекрытия, заполнение стен газобетонными блоками Bonolit D500 с применением монолитных несущих колон и пилонов.
- Оконные системы: теплые панорамные алюминиевые окна.
- Фасад: Гибкая керамика Phomi, Керамогранит и планкен лиственница. Встроенная в фасад водосточная система.
- Кровля: монолитная плоская кровля.
- обустроены террасы и эксплуатируемая кровля с установленными чистовыми материалами.
ИНЖЕНЕРНЫЕ СИСТЕМЫ:
-Электричество 35 кВт заведенное в дом
-Центральное отопление от городских сетей заведенное в дом.
-Городское центральное водоснабжение заведенное в дом.
-Городское центральное водоотведение заведенное в дом
О РАЙОНЕ:
Уникальное расположение в городской черте со всеми атрибутами загородной жизни.
Развитая инфраструктура – детские сады, школы, фитнес-клубы, магазины, детская и взрослая поликлиника в 5-ти минутах ходьбы от дома, в шаговой доступности ТЦ Вегас, Крокус-сити, Океанариум, отличные детские площадки, новая современная набережная Москва-реки протяженностью 3 км и бульвары для прогулок. Дом удачно расположен, 25 минут на машине до Москва-сити, 30 минут до центра Москвы. Удобные выезды на Волоколамское, Ильинское и Новорижское шоссе.












































