Арт. 95536790
Представляем вашему вниманию дом 354 кв. м с потрясающим видом на воду на участке площадью 63 сотки в коттеджном поселке Полуостров, расположенном в 54 км от Москвы по Ленинградскому шоссе.
Дом построен по технологии фахверк. Каркас дома выполнен из бруса, а проемы заполнены панорамными трехслойными окнами с напылением (8Х6Х8мм).
Дом двухэтажный. Полезная площадь дома составляет 240 кв.м. В доме предусмотрены раздвижные окна, обеспечивающие прямой доступ к террасе 114 кв.м. В гостиной установлен подвесной дровяной камин. Дом продается с отделкой «под ключ». В настоящий момент ведутся внутренние работы.
Участок, общей площадью 63 сотки, полностью благоустроен, на берегу реки организована лаундж-зона с кострищем, на безопасном расстоянии от дома расположена BBQ-зона.
Особенностью дома является наличие второго света и панорамное остекление, что подарит будущему хозяину ощущение простора, дополнительное естественное освещение всего дома.
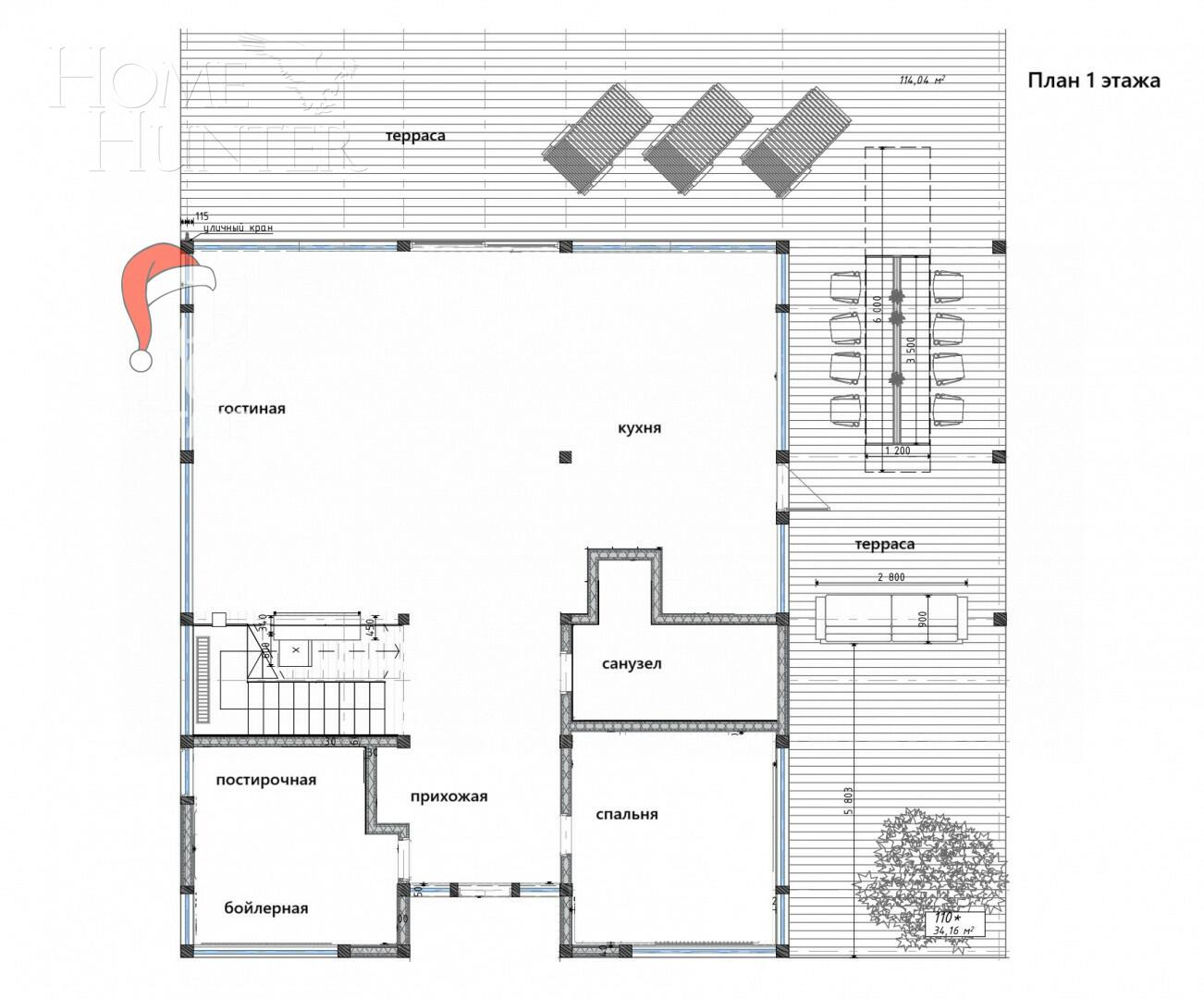
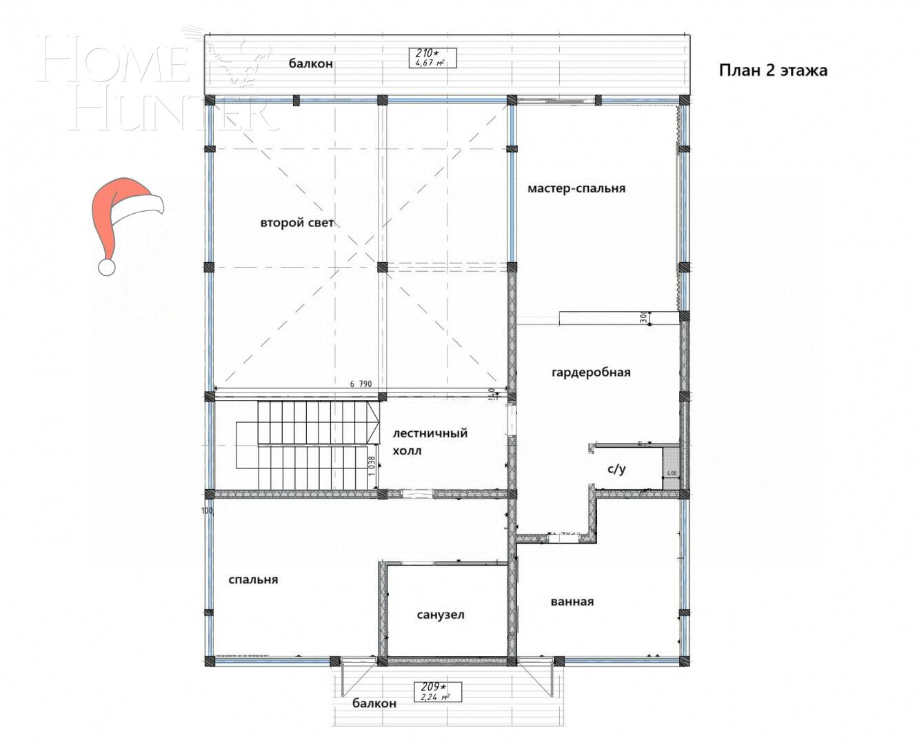
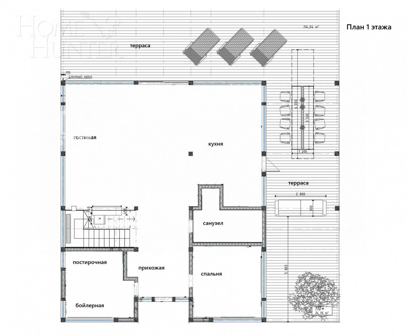
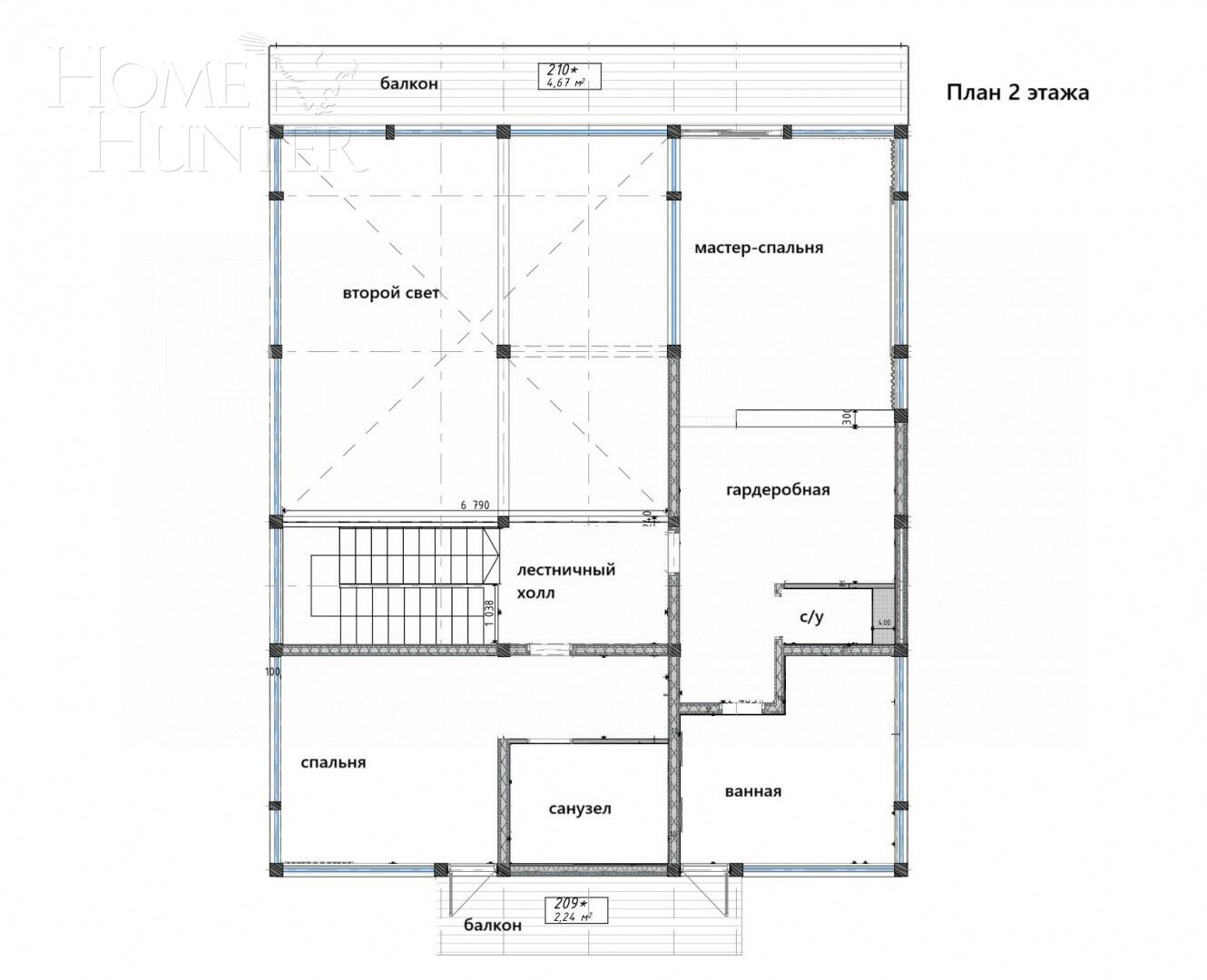
Планировка:
Первый этаж – прихожая, постирочная с бойлерной, гостиная, кухня-столовая, санузел с турецкой баней (хаммам), спальня.
Второй этаж – мастер-спальня, спальня с санузлом, второй свет.
В гостевом доме разместили жилую комнату, кухню и санузел с душевой кабиной, котельную и кладовое помещение. Общая площадь здания составляет около 100 кв.м. В доме выполнена чистовая отделка и расставлена мебель.
Коттеджный поселок «Полуостров» расположен на берегу реки Истры в 54 км от Москвы по Ленинградскому шоссе.
Коттеджный поселок рассчитан всего на 84 домовладения, треть из которых находятся на первой береговой линии. Концепцией коттеджного поселка Полуостров предусмотрено наличие эллинга для хранения и обслуживания лодок, есть крытый теннисный корт, футбольное поле, а также детская и спортивная площадка. У всех жителей коттеджного поселка есть доступ к набережной и песчаному пляжу. Территория поселка охраняется, на въезде организован КПП с шлагбаумом. К домовладениям подведены все центральные коммуникации – идеальное решение для любителей городского комфорта.
Инфраструктура, необходимая для ежедневной жизни: магазины, поликлиники, детские сады, школы – расположена всего в 9 км в городе Солнечногорск.
Время в пути до Москвы составит менее 1 часа по Ленинградскому шоссе. В 15 минутах от коттеджного поселка Полуостров расположена станция «Подсолнечная», время в пути на экспресс-электричке «Ласточка» до Ленинградского вокзала составит всего 40 минут. Удачное расположение поселка позволяет быстро добраться до международного аэропорта «Шереметьево» (в течение 40 минут).






















































































