Арт. 70693208
Вашему вниманию представлен дизайнерский дом в КП "Грин Лаундж", расположенный в 45 км от МКАД по Новорижскому шоссе.
Дом выполнен по уникальному проекту "Луна", в современном стиле, сочетающем в себе актуальную архитектуру и комфортную концепцию для загородной жизни.
Дом построен компанией Holzbaken из клеёного бруса 365х202 на фундамента из железобетонных 4-метровых свай 200*200 мм с обвязкой клееным конструктивным брусом. Установлено панорамное остекление. Кровля кликфальц, крыша дополнительно утеплена, установлены снегозадержатели и водосточная система. В котельной установлены 2 котла: электрический и газовый, система водоочистки, вентиляционная система и система увлажнения воздуха.
Дом полностью готов к проживанию: сделан дизайнерский ремонт, установлена мебель, сделанная на заказ по дизайн-проекту, установлена вся необходимая техника премиальных марок, освещение от топовых брендов. При внутренней отделке использовались исключительно качественные натуральные материалы. Во всем доме сделаны теплые водяные полы с автоматической системой поддержания температуры. Также дом оснащен системой кондиционирования, приточно-вытяжной вентиляции с дополнительным увлажнением воздуха по всему дому.
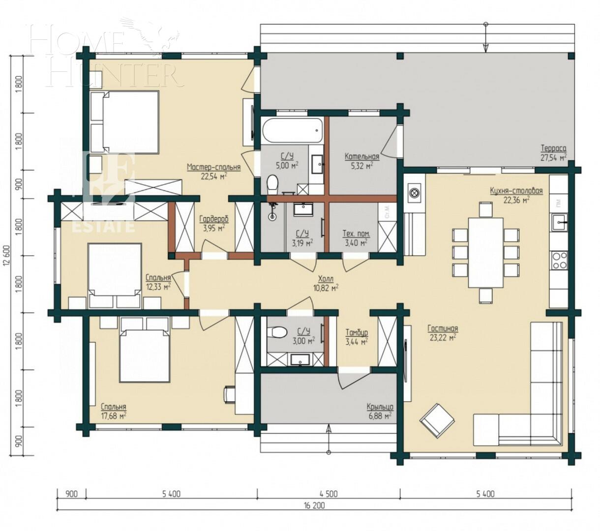
Планировка продумана до мелочей и включает в себя мастер-спальню, две изолированные спальни, полноценную гардеробную комнату, просторную кухню-гостиную со вторым светом и большую террасу.
Дом расположен на квадратном ровном участке площадью 14,52 сотки, выполнен ландшафтный дизайн, сделана система автополива, установлено освещение. Организована въездная группа с автоматическими откатными ворота.
На территории участка дополнительно сделан навес на два автомобиля и отдельное помещение для хранения садового инвентаря и инструментов.
Планировка:
Терраса, зал-кухня-гостиная, гардеробная, санузел с душевой (раздельный), спальня гостевая, спальня детская, мастер-спальня с гардеробной и санузлом с ванной, котельная
Коттеджный поселок "Грин Лаундж" расположен на берегу реки Чернушка в окружении леса в 57 км от МКАД по Волоколамскому шоссе и в 58 км по Пятницкому шоссе.
Внутри поселка созданы все условия для комфортного проживания: асфальтные подъездные дороги, широкие улицы с тротуарами и освещением, детские площадки, зелёные общественные зоны, гостевые парковки, собственный пляж и причал. Поселок расположен на закрытой территории со своим КПП, с круглосуточной охраной и видеонаблюдением.
Полноценная городская инфраструктура расположена в городе Истра в 15 минутах езды на автомобиле: образовательные учреждения, супермаркеты, магазины, торговые центры и многое другое.
До Москвы можно добраться на автомобиле в течение 50-ти минут.



































































































