Арт. 61051780
Вашему вниманию представляется 3-х этажный дом под отделку в КП Николо-Пятницкое, расположенный в 15 км от МКАД по Пятницкому шоссе. Прекрасное расположение позволяет наслаждаться тишиной и спокойствием в ближайшем расположении от Москвы.
Дом построен в 2023 году из кирпича Porotherm на свайно-ленточном фундаменте, с монолитными перекрытиями и монолитными лестницами, сделана стяжка пола, фасад здания отделан облицовочным кирпичом, установлены тройные стеклопакеты Veka, крыша отделана мягкой черепицей и аква-системой, сделан водосток. Заведены все необходимые коммуникации: разведено электричество (трехфазное, 15 квт), подведен газ и установлено газовое оборудование, сделано разведение воды. Также в доме сделаны три шахты для камина.
Планировка дома включает в себя просторный зал с обеденной зоной, пять комфортных спален и зону отдыха, обеспечивая достаточное место для всей семьи и гостей. Высокие потолки, достигающие 3,4 метра, и большие окна придают комнатам ощущение простора и воздушности. В доме сделаны 2 балкона, с которых открывается потрясающий вид на лесную чащу. Сделан теплый гараж на два машиноместа с автоматическими воротами. Вокруг дома сделан дренаж.
Прекрасная возможность сделать ремонт дома под себя.
Участок правильной формы огорожен металлическим забором с калиткой и автоматическими откатными воротами, расположен на тихой улице, со своим выходом в лес. По всем участку засеян газон, а перед домом сделана площадка из клинкерной брусчатки для парковки двух автомобилей.
Есть возможность взять в аренду лесной участок и увеличить площадь земли.
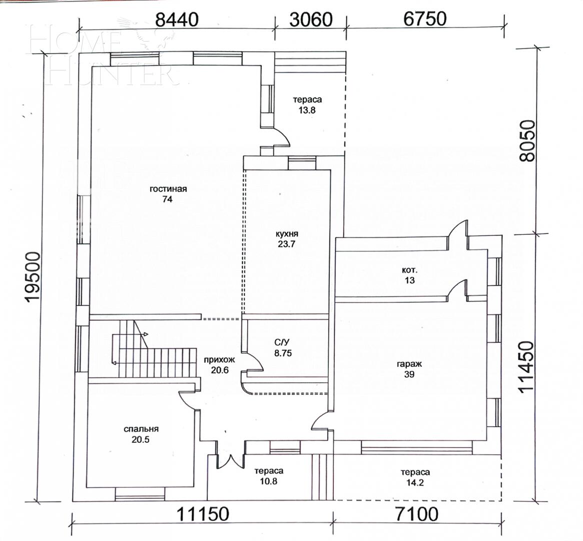
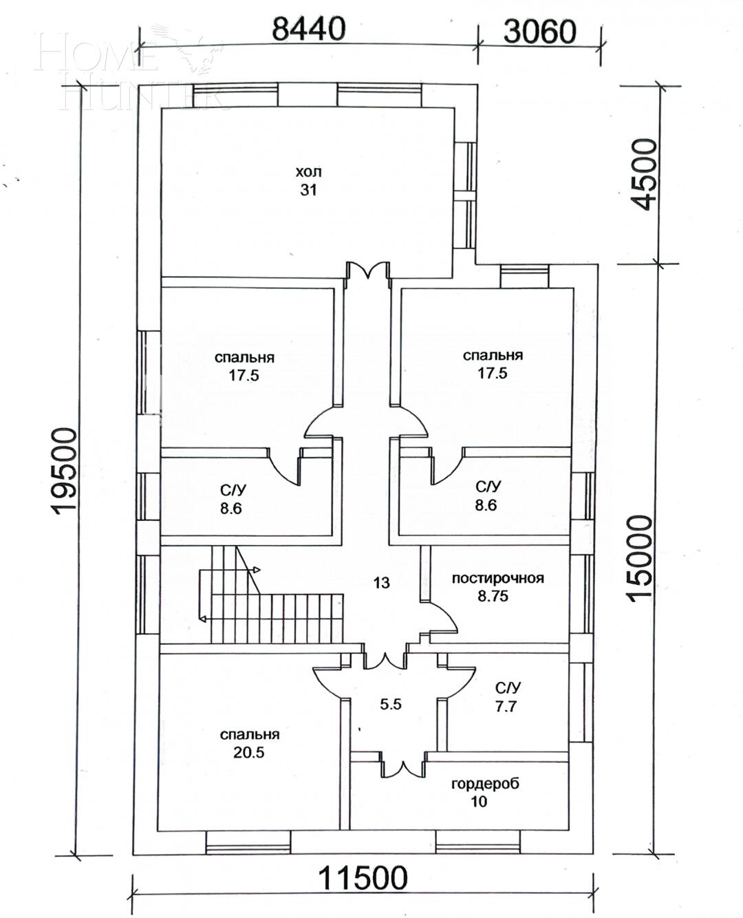
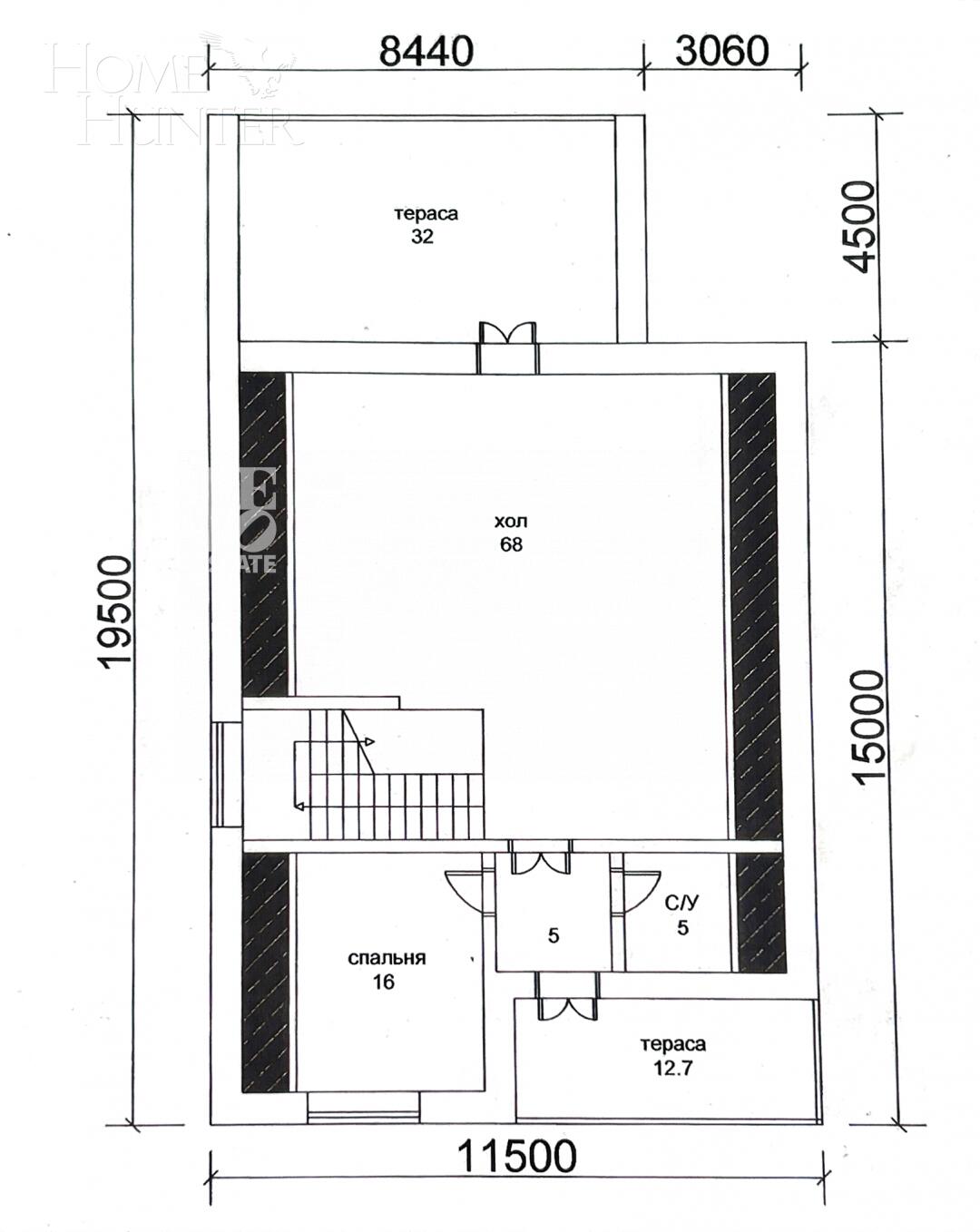
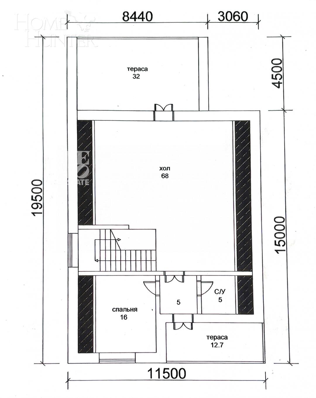
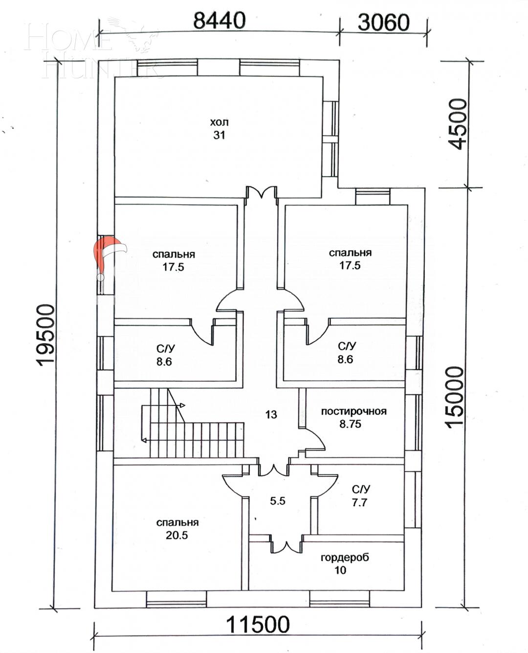
Планировка:
Первый этаж: прихожая, гостевая спальня, санузел, гостиная, кухня, котельная, гараж
Второй этаж: мастер-спальня с гардеробной и санузлом, две спальни с санузлами, гостиная, прачечная
Мансардный этаж: свободная планировка
Коттеджный поселок "Николо-Пятницкое" расположен в 15 км от МКАД по Пятницкому шоссе.
Территория поселка полностью огорожена, ведется круглосуточное патрулирование территории, организована въездная группа. Окружен с трех сторон лесом, у многих участков есть собственный выход в лес. Все коммуникации в поселке центральные: газ, электричество, водопровод, канализация. На территории поселка предусмотрены специальные зоны отдыха, детская и спортивная площадки.
В нескольких минутах езды от коттеджного поселка "Николо-Пятницкое" находится конно-спортивный комплекс, медцентр, рестораны. Также жители поселка могет воспользоваться инфраструктурой района Митино и г. Зеленограда. Чуть дальше по Пятницкому шоссе расположен отель "Фореста Тропикана", который предлагает отдохнуть в SPA, шоу-программы для взрослых и детей, бассейн с аквагорками, бильярд, массаж, теннисный корт, фитнес и многое другое.
Локация поселка очень удобная, позволяет одновременно быть рядом с городом и наслаждаться природой: менее 100 метров до реки Нахабинка, около 700 метров до реки Банька. Экологически чистый район богат живописными природными местами.
Доехать до поселка можно на личном автомобиле по Пятницкому шоссе. Также от метро "Митино" ходит маршрутное такси и автобусы.
























































































