БЕЗ КОМИССИИ для покупателя. Лот 549195. Предлагается дом «под отделку». В стоимость входит облицовка натуральным дагестански камнем в сочетании с кирпичом ручной формовки. Грамотная планировка, панорамные окна в гостиной. Имеется подвал (технические помещения, винная комната). Расположение дома на участке дает возможность дополнительно построить баню/ SPA-комплекс.
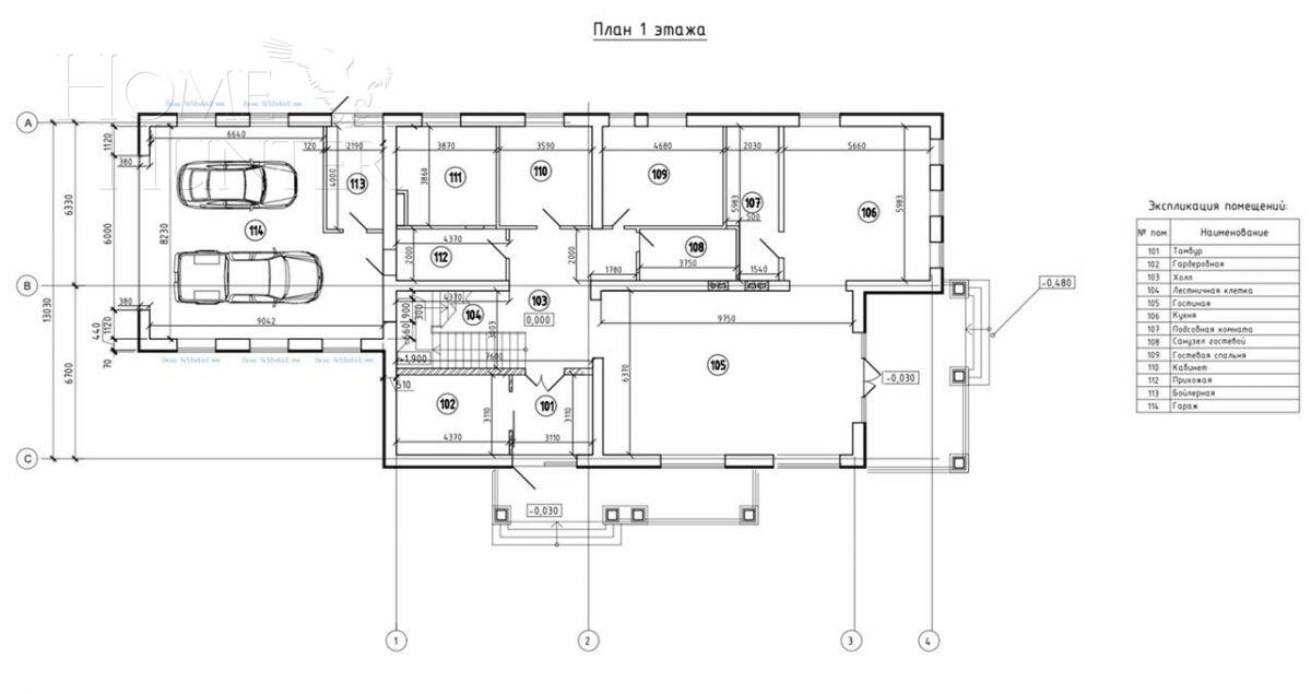
1-ый уровень: тамбур, гардеробная, холл, кухня-столовая, гостиная с выходом на террасу, гостевая спальня, с/у, кабинет, подсобное помещение, бойлерная, гараж на 2 м/м;
2-ой уровень: холл, 2 спальни со своими с/у и гардеробными, 2 спальни со своими с/у, кабинет, балкон.














